Commercial premises for sale
Nowoczesny budynek biurowy z magazynem w Siechnicach przy Obwodnicy Wschodniej
Tadeusza Kościuszki St., Siechnice, Wrocławski
1 264 m²
Tadeusza Kościuszki St., Siechnice, Wrocławski
Description
Commercial premises
Market
Secondary
Area
1 264 m²
No. of rooms
52
No. of ground-level park. spaces
40
Available from
18.11.2025
Purpose
Services
Building
Building type
Warehouse and office
Built in
2015
No. of floors
1
Gas
YES
Elevator
NO
Reception
YES
Ground-level parking
YES
Underground parking
NO
Garage
YES
Monitoring
YES
Security
NO
Fenced area
YES
Air-conditioning
YES
Access Control
YES
Phone switchboard
YES
Ventilation
YES
Suspended ceilings
NO
Partition walls
YES
Electric installation
YES
Phone installation
YES
Computer network
YES
Fire installation
YES
Social area
YES
Smoke sensors
YES
Heating
YES
Windows can be opened
YES
Storefront
YES
Fees
Price
13 600 000 zł
Price per m²
10 759 zł/m²
Offer
Offer ID
2070/OLS
Nowoczesny budynek biurowy z magazynem w Siechnicach przy Obwodnicy Wschodniej
For sale - a modern office building with warehouse and development opportunities, located in Siechnice near Wrocław, with direct access to the Eastern Bypass. Exclusively in our office.
OFFICE AND WAREHOUSE BUILDING DESCRIPTION
The building was designed with attention to detail, constructed to a modern, functional, and very high standard. Maintained in excellent technical condition, it is ideal for companies seeking space to conduct business combining office, administrative, logistics, and representative functions.
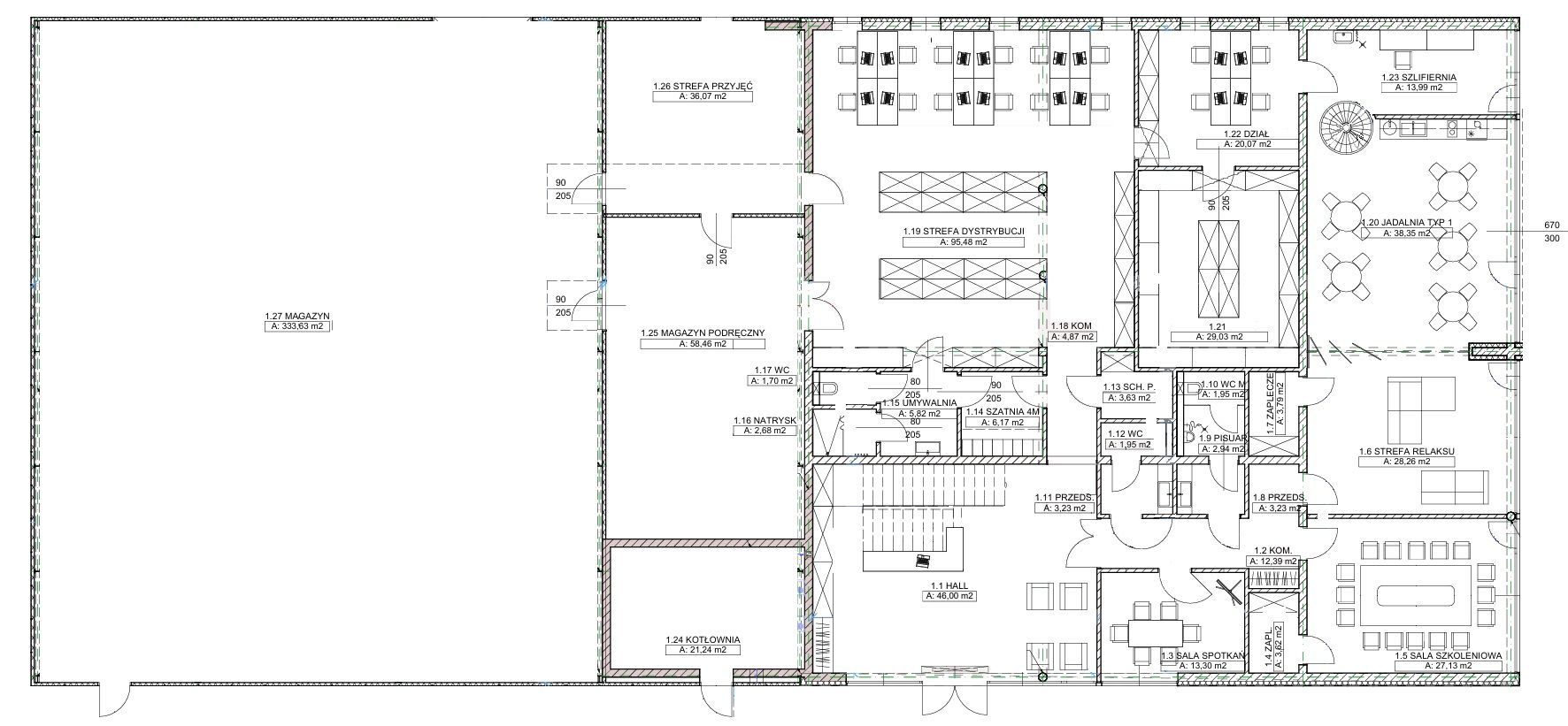
b/ storage area ground floor: 1.14 cloakroom: 6.17 1.15 bathroom 1: 5.82 1.16 shower: 2.68 1.17 WC 4: 1.70 1.18 Hall 4: 4.87 1.19 storage room 1: 95.48 1.21 storage room 2: 29.03 1.22 storage room 3: 20.07 1.23 storage room 4: 13.99 1.24 boiler room: 21.24 1.25 storage room 5: 58.46 1.26 storage room 6 / courier zone: 36.07 1.27 storage room 7 / main warehouse: 333.63
The interiors are modern, spacious and well-lit. Building equipment: alarm, air conditioning, monitoring, fiber optics, gas heating
Did you know that with homfi, you can buy a property comprehensively, taking care of everything with one company? In addition to real estate agents who help you find and purchase properties, we also provide experienced mortgage experts, talented interior designers, and resourceful rental management specialists. This means you can find a property with us, finance its purchase, design and finish its interior, and then sell or rent it, with the option of letting us manage the rental.
Interested? Ask your listing manager for details.
LOCATION:
The property is located in Siechnice on Tadeusza Kościuszki Street, with direct access to the Wrocław Eastern Bypass. An attractive location for companies operating in warehousing, logistics, or services. The location provides easy access to urban infrastructure and convenient commuting for employees and clients.- 4 km from the eastern border of Wrocław (direction Wrocław - Oława)
- 14.5 km from the access to the A4 Motorway (direction Katowice - Zgorzelec)
- 24.5 km from the access to the A8 Wrocław Motorway Bypass (direction Warsaw - Poznań)
LAND DESCRIPTION:
The facility and the entire investment are situated on a plot of 1.0645 ha and land registration number 820.- the area is fenced and paved
- the current land development allows for parking several dozen cars
- the area has a maneuvering area for the warehouse
- within the property there is a recreational pond with an area of approximately 2,000 m2 with a private beach and a beach bar
OFFICE AND WAREHOUSE BUILDING DESCRIPTION
- The facility has a total area of 1,264.22 m²
The building was designed with attention to detail, constructed to a modern, functional, and very high standard. Maintained in excellent technical condition, it is ideal for companies seeking space to conduct business combining office, administrative, logistics, and representative functions.
GROUND FLOOR LAYOUT:
a/ office part ground floor: 1.1 Hall: 46.00 m2 1.2 Hall 2: 12.39 m2 1.3 meeting room: 13.30 m2 1.4 storage room: 3.62 m2 1.5 training room: 27.13 m2 1.6 relaxation area: 28.26 m2 1.7 storage room 2: 3.79 m2 1.8 Hall 3: 3.23 m2 1.9 WC 2: 2.94 m2 1.10 WC 1: 1.95 m2 1.11 Hall 3: 3.23 m2 1.12 WC 3: 1.95 m2 1.13 cleaning room: 3.63 m2 1.20 dining room with slide: 38.35 m2b/ storage area ground floor: 1.14 cloakroom: 6.17 1.15 bathroom 1: 5.82 1.16 shower: 2.68 1.17 WC 4: 1.70 1.18 Hall 4: 4.87 1.19 storage room 1: 95.48 1.21 storage room 2: 29.03 1.22 storage room 3: 20.07 1.23 storage room 4: 13.99 1.24 boiler room: 21.24 1.25 storage room 5: 58.46 1.26 storage room 6 / courier zone: 36.07 1.27 storage room 7 / main warehouse: 333.63
FLOOR LAYOUT:
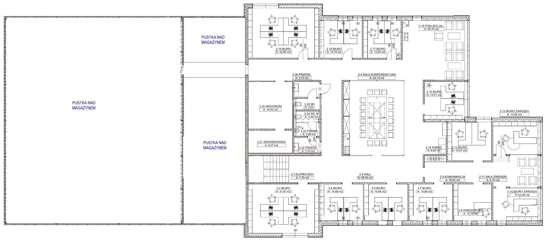
a/ office part floor: 2.1 staircase: 7.75 2.2 office 1: 31.97 2.3 hall 1 / main: 86.50 2.4 conference room: 40.13 2.5 office 2: 14.68 2.6 office 3: 14.68 2.7 office 4: 14.68 2.8 office 5: 12.78 2.9 + 2.11 hall 2 / management area: 26.93 2.10 office 6 / management area: 13.46 2.12 office 7 / management area: 13.46 2.13 office 8 / management area: 15.67 2.14 photocopying point in the hall: 6.64 2.15 office 9: 14.01 2.16 kitchen room: 26.70 2.17 office 10: 13.50 2.18 office 11: 14.74 2.19 office 12: 32.65 2.20 archive room: 19.43 2.21 server room: 9.37 2.22 cleaning room: 3.75 2.23 WC 5: 2.99 2.24 WC 6: 2.49 2.25 WC 7: 2.53 2.26 cleaning room: 3.75The interiors are modern, spacious and well-lit. Building equipment: alarm, air conditioning, monitoring, fiber optics, gas heating
FINANCE:
- selling price: 13 600 000 PLN sale based on a VAT invoice - VAT exempt
Did you know that with homfi, you can buy a property comprehensively, taking care of everything with one company? In addition to real estate agents who help you find and purchase properties, we also provide experienced mortgage experts, talented interior designers, and resourceful rental management specialists. This means you can find a property with us, finance its purchase, design and finish its interior, and then sell or rent it, with the option of letting us manage the rental.
Interested? Ask your listing manager for details.
Location
Loan
Do you like this property?
Act fast and secure it for yourself - book online or make an offer!
Do you like this offer?
Subscribe to the newsletter to receive offers of properties similar to this one.
























































