homfi is pleased to present a comfortable three-room apartment with an area of 62 m2 located in the Mazurskie estate in Olsztyn.
LOCATION: The apartment is located in a quiet area, in the Mazurskie estate. There is a lot of greenery nearby, and a playground for children. On the estate you can use the new public outdoor gym. A grocery store and a bakery are just a 3-minute walk away. Convenient access to the city ring road. The apartment is close to the nearby beach at Lake Skanda, which can be reached in 5 minutes by car or 20 minutes by foot. From Wyszyńskiego Street, which is only 600 meters away, you can use a wide range of buses, and soon a newly created tram line.
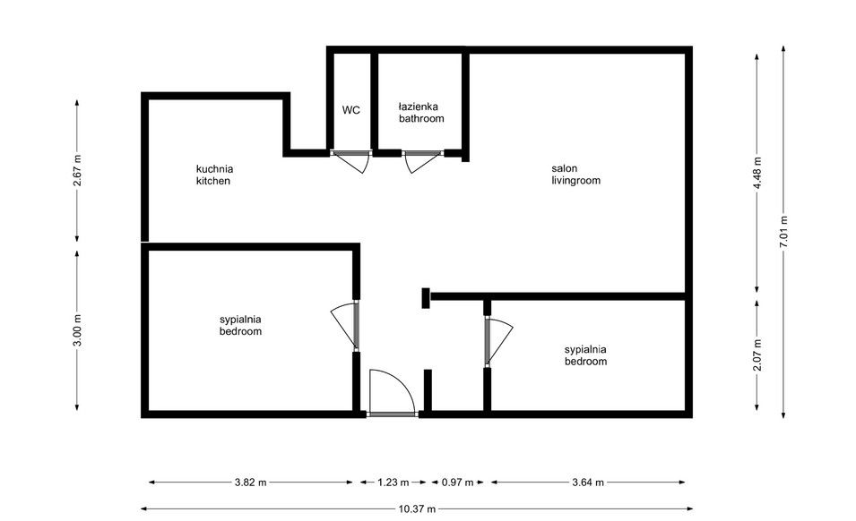
APARTMENT: The apartment is located on the 3rd floor and is fully equipped and ready to move in. It consists of 2 bedrooms and a spacious living room with a balcony. The advantage of the apartment is: a separate kitchen with a large window, and a separate bathroom and toilet. The rooms have been recently refreshed and furnished. Numerous wardrobes and chests of drawers will facilitate storage. In the kitchen you will find a stove with an oven and a dishwasher, and in the living room there is a modern TV.
FINANCE:
Rent 2300 PLNAdministrative rent 724 PLN
Deposit 2300 PLN
Commission for the real estate agency: one times the rent
Interested? Contact us at +48 799 350 796 or write us an e-mail via the contact form available in the advertisement.
Do you like this property?
Act fast and secure it for yourself - book online or make an offer!
Do you like this offer?
Subscribe to the newsletter to receive offers of properties similar to this one.























