Description
Commercial premises
Market
Secondary
Area
1 856 m²
No. of rooms
14
Available from
12.04.2023
Room height
4 m
Building
Building type
Warehouse and office
No. of floors
3
Gas
YES
Ground-level parking
YES
Fees
Offer
Offer ID
149/OOS
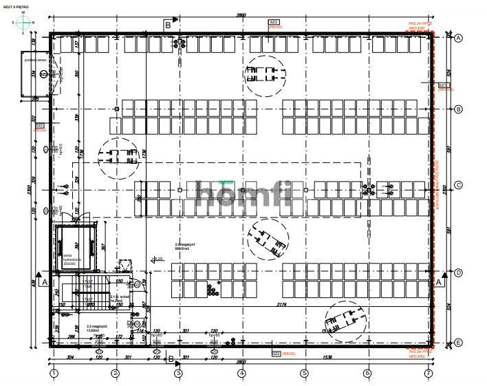
Plot with a construction project for a building of 1856m2, near the city of Krakow, Wieliczka
A plot for sale with a project for the construction of a PUU service and warehouse facility 1856m2, in Bodzanów, near Wieliczka, Krakow
Building permit
Distance to the border of Krakow - 10 km
(Wieliczka - 4 km, Bochnia - 20 km, Niepołomice - 10 km)
Data from local development plan:
designation: U - Commercial service development areas
biologically active area: 30%
maximum building height: 12m
maximum building area 40%
Plot with utilities, water, electricity, gas.
Permission for the construction of the facility issued.
The proposed facility provides for the construction of a 3-story service and warehouse building with a total area of 1856 m2
(379 PLN/PUU)
Adam Stawowy - Agent of the Year 2021 at Nowodworski Estates - I will help sell your property.
Interested? Contact us at +48 799 350 796 or write us an e-mail via the contact form available in the announcement.
Ask the offer supervisor for details.
Building permit
LOCATION:
The real estate is located in Bodzanów on the main national road no. 94, Kraków - Wieliczka - Bochnia - Brzesko - Tarnów.Distance to the border of Krakow - 10 km
(Wieliczka - 4 km, Bochnia - 20 km, Niepołomice - 10 km)
PLOT:
area: 18.06 aresData from local development plan:
designation: U - Commercial service development areas
biologically active area: 30%
maximum building height: 12m
maximum building area 40%
Plot with utilities, water, electricity, gas.
OBJECT:
The design of the facility was prepared on the basis of the valid local spatial development plan.Permission for the construction of the facility issued.
The proposed facility provides for the construction of a 3-story service and warehouse building with a total area of 1856 m2
FINANCES:
PLN 699 000 netto - the price of the property with the design and building permit.(379 PLN/PUU)
Adam Stawowy - Agent of the Year 2021 at Nowodworski Estates - I will help sell your property.
Interested? Contact us at +48 799 350 796 or write us an e-mail via the contact form available in the announcement.
- - -- -- -- -- -- -- -- -- -- -- -- -- -- -- -- -- -- -- -- -- -- -- -- -- -- -- -- -- -- -- --
Interested? Contact us at +48 799 350 796 or write us an e-mail via the contact form available in the announcement.
Did you know that with homfi you can buy real estate comprehensively, i.e. arranging everything in one company? In addition to real estate agents helping you find and purchase real estate, we put at your disposal experienced credit experts, talented interior architects and resourceful rental management specialists.
Ask the offer supervisor for details.
Location
Loan
Contact
Oops! This offer is no longer available.
Nothing lost! Contact us and we will find a similar one for you.
Do you like this offer?
Subscribe to the newsletter to receive offers of properties similar to this one.
















