Dom na sprzedaż
Dom z garażem i tarasem w Tyczynie – 144 m² + poddasze, zamknięte osiedle
ul. Zagrody, Tyczyn, Rzeszowski
144 m²
ul. Zagrody, Tyczyn, Rzeszowski
Opis
Dom
Rynek
Pierwotny
Typ budynku
Bliźniak
Liczba pięter
2
Powierzchnia
144 m²
Pokoje
5
Łazienki
2
Toalety
1
Prąd
TAK
Kanalizacja
TAK
Stan prawny
Własność
Stan budynku
Stan deweloperski
Rok budowy
2024
Ogrzewanie
Pompa ciepła
Dach
Blachodachówka
Garderoba
TAK
Balkon/taras
TAK
Parking naziemny
TAK
Garaż
TAK
Cechy
Dla rodzin z dziećmi
Dla dbających o środowisko
Gorąca woda / ciepła woda
Pompa ciepła
Działka
Pow. działki
438 m²
Teren ogrodzony
TAK
Kształt działki
Prostokąt
Ukształtowanie działki
Płaska
Opłaty
Cena
890 000 zł
Cena za m²
6 181 zł/m²
Oferta
ID oferty
6395/ODS
Dom z garażem i tarasem w Tyczynie – 144 m² + poddasze, zamknięte osiedle
Twój dom marzeń – nowoczesność i komfort w kameralnym osiedlu
Do sprzedania nowoczesny dom, idealny dla rodziny ceniącej komfort oraz możliwość indywidualnej aranżacji wnętrza. Usytuowany w spokojnej, zielonej okolicy z szybkim dojazdem do centrum, dom znajduje się na widokowej działce w kameralnym, zamkniętym osiedlu, w którym jest zaledwie 8 domków.
Kluczowe atuty:
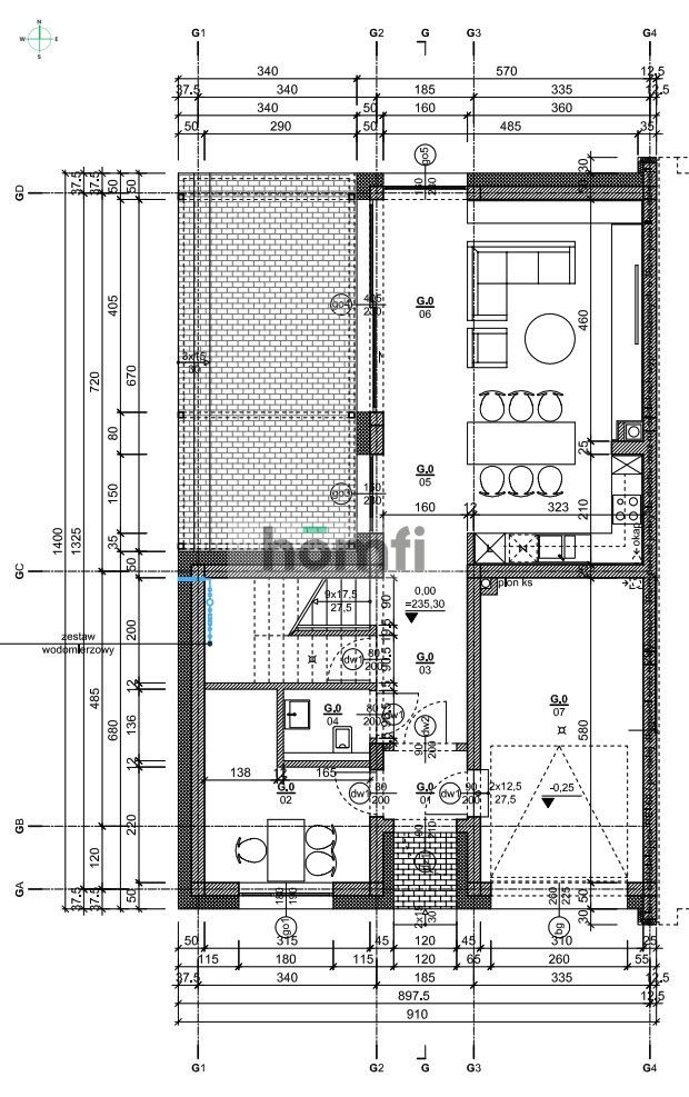
Parter (71 m²):
Lokalizacja:
Dom usytuowany jest w spokojnej, zielonej okolicy, lokalizacja gwarantuje szybki dojazd do centrum Rzeszowa, co zapewnia wygodny dojazd do pracy, szkoły i komfort życia na co dzień. Dzięki planowanej budowie obwodnicy Tyczyna, dojazd będzie jeszcze szybszy.
Lokalizacja osiedla Tyczynie gwarantuje doskonały dostęp do wszystkich niezbędnych udogodnień. W zasięgu krótkiej przechadzki lub kilku minut jazdy:
890 000 PLN – stan deweloperski
Zainteresowany? Skontaktuj się z nami pod numerem +48 536 860 123 lub napisz nam maila poprzez formularz kontaktowy dostępny w ogłoszeniu.
Czy wiesz, że z homfi możesz kupić nieruchomość kompleksowo, tzn. załatwiając wszystko w jednej firmie? Oprócz agentów nieruchomości pomagających w znalezieniu i zakupie nieruchomości, oddajemy Ci do dyspozycji doświadczonych ekspertów kredytowych, zdolnych architektów wnętrz i zaradnych specjalistów od zarządzania najmem. Dzięki temu z nami znajdziesz nieruchomość, sfinansujesz jej zakup, zaprojektujesz i wykończysz jej wnętrze a następnie sprzedasz lub wynajmiesz z opcją przekazania nam nieruchomości do zarządzania najmem.
Zainteresowany? Zapytaj opiekuna oferty o szczegóły.
Do sprzedania nowoczesny dom, idealny dla rodziny ceniącej komfort oraz możliwość indywidualnej aranżacji wnętrza. Usytuowany w spokojnej, zielonej okolicy z szybkim dojazdem do centrum, dom znajduje się na widokowej działce w kameralnym, zamkniętym osiedlu, w którym jest zaledwie 8 domków.
Kluczowe atuty:
- Lokalizacja: Spokojna, zielona okolica zaledwie kilka minut od centrum – gwarancja komfortu życia oraz łatwego dostępu do sklepów, szkół i terenów rekreacyjnych.
- Kameralne osiedle: Zamknięte osiedle z tylko 8 domkami zapewnia prywatność i ekskluzywną atmosferę.
- Funkcjonalny rozkład: Przemyślany układ pomieszczeń umożliwia elastyczną aranżację wnętrza dopasowaną do potrzeb Twojej rodziny.
- Duży taras i widokowa działka: Przestronny taras (25,5 m²) oraz malownicza działka stwarzają idealne warunki do relaksu i wypoczynku.
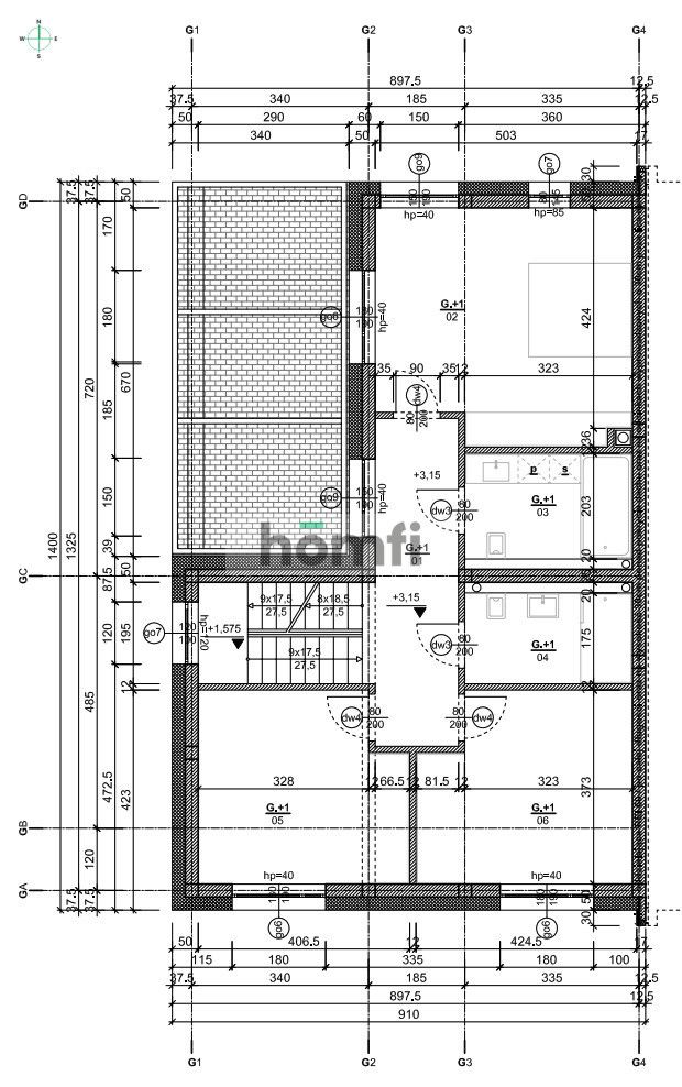
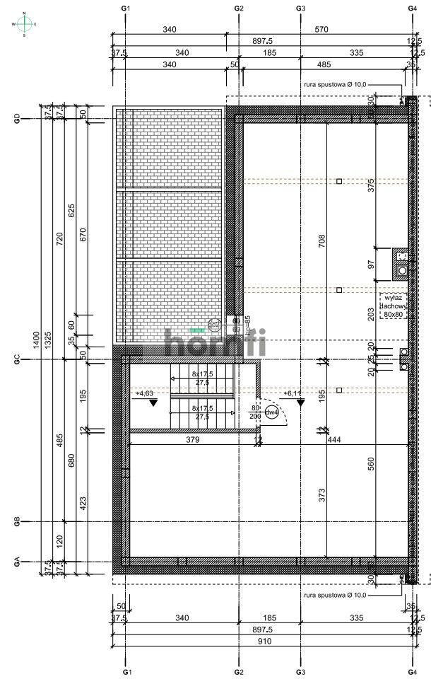
- Adaptowalne poddasze: Nieużytkowe poddasze nad całym domem daje możliwość adaptacji – można stworzyć aż 3 dodatkowe pokoje, zwiększając funkcjonalność przestrzeni.
- Nowoczesne, energooszczędne rozwiązania: Inwestycja w wysokiej klasy okna 6‑komorowe, solidne ocieplenie (styropian 20 cm + tynk silikonowy) oraz przygotowanie instalacji pod fotowoltaikę, rekuperację i pompę ciepła zapewnia niższe koszty eksploatacji.
- Garaż w bryle budynku: 18 m² przestrzeni dla Twojego samochodu, gwarantujący bezpieczeństwo.
- Rolety zewnętrzne w każdym oknie z opcją WiFi: Nowoczesne rozwiązanie podnoszące komfort oraz bezpieczeństwo.
- Instalacja domofonowa i wpięcie do kanalizacji miejskiej: Komfort i wygoda codziennego użytkowania.
- Zbiornik gruntowy na deszczówkę: Wspomaga gospodarowanie wodą na działce.
- Usługa architekta wnętrz w cenie: Profesjonalne wsparcie przy aranżacji wnętrza, pozwalające stworzyć przestrzeń idealnie dopasowaną do Twoich potrzeb.
- Całkowite ogrodzenie działki: Zapewnia prywatność oraz bezpieczeństwo Twojej rodziny.
- Hörmann zewnętrzne drzwi wejściowe ISOPRO
- Garażowa brama segmentowa Hörmann RenoMatic, napęd do bram garażowych ProMatic
Parter (71 m²):
- Wiatrołap
- Spiżarnia
- Gabinet
- Łazienka
- Hol
- Przestronny salon z aneksem kuchennym
- Garaż w bryle budynku (18 m²)
- Przemyślana komunikacja
- Dwie łazienki
- Trzy pokoje
Lokalizacja:
Dom usytuowany jest w spokojnej, zielonej okolicy, lokalizacja gwarantuje szybki dojazd do centrum Rzeszowa, co zapewnia wygodny dojazd do pracy, szkoły i komfort życia na co dzień. Dzięki planowanej budowie obwodnicy Tyczyna, dojazd będzie jeszcze szybszy.
Lokalizacja osiedla Tyczynie gwarantuje doskonały dostęp do wszystkich niezbędnych udogodnień. W zasięgu krótkiej przechadzki lub kilku minut jazdy:
- Sklepy i punkty usługowe: Najbliższe sklepy spożywcze, apteki i punkty usługowe znajdują się w odległości około 300–500 m.
- Przychodnia zdrowia: Kompleksowa opieka medyczna jest dostępna w promieniu 500–700 m, co umożliwia szybki dostęp do usług medycznych.
- Edukacja: Szkoły i przedszkola są usytuowane w bliskiej odległości, co zapewnia wygodę dla rodzin z dziećmi – zazwyczaj do 5–10 minut spacerem.
- Rekreacja: Parki oraz tereny zielone są położone w pobliżu, umożliwiając aktywny wypoczynek na świeżym powietrzu.
- Komunikacja: Dogodne połączenia autobusowe i bliskość centrum Tyczyna gwarantują łatwy dojazd do innych części miasta.
890 000 PLN – stan deweloperski
Zainteresowany? Skontaktuj się z nami pod numerem +48 536 860 123 lub napisz nam maila poprzez formularz kontaktowy dostępny w ogłoszeniu.
Czy wiesz, że z homfi możesz kupić nieruchomość kompleksowo, tzn. załatwiając wszystko w jednej firmie? Oprócz agentów nieruchomości pomagających w znalezieniu i zakupie nieruchomości, oddajemy Ci do dyspozycji doświadczonych ekspertów kredytowych, zdolnych architektów wnętrz i zaradnych specjalistów od zarządzania najmem. Dzięki temu z nami znajdziesz nieruchomość, sfinansujesz jej zakup, zaprojektujesz i wykończysz jej wnętrze a następnie sprzedasz lub wynajmiesz z opcją przekazania nam nieruchomości do zarządzania najmem.
Zainteresowany? Zapytaj opiekuna oferty o szczegóły.
Lokalizacja
Kredyt
Podoba Ci się ta nieruchomość?
Nie czekaj aż ktoś Cię ubiegnie - zarezerwuj online lub zaproponuj swoją cenę!
Podoba Ci się ta oferta?
Zapisz się na newsletter, aby otrzymywać oferty nieruchomości podobnych do tej.






















