Opis
Mieszkanie
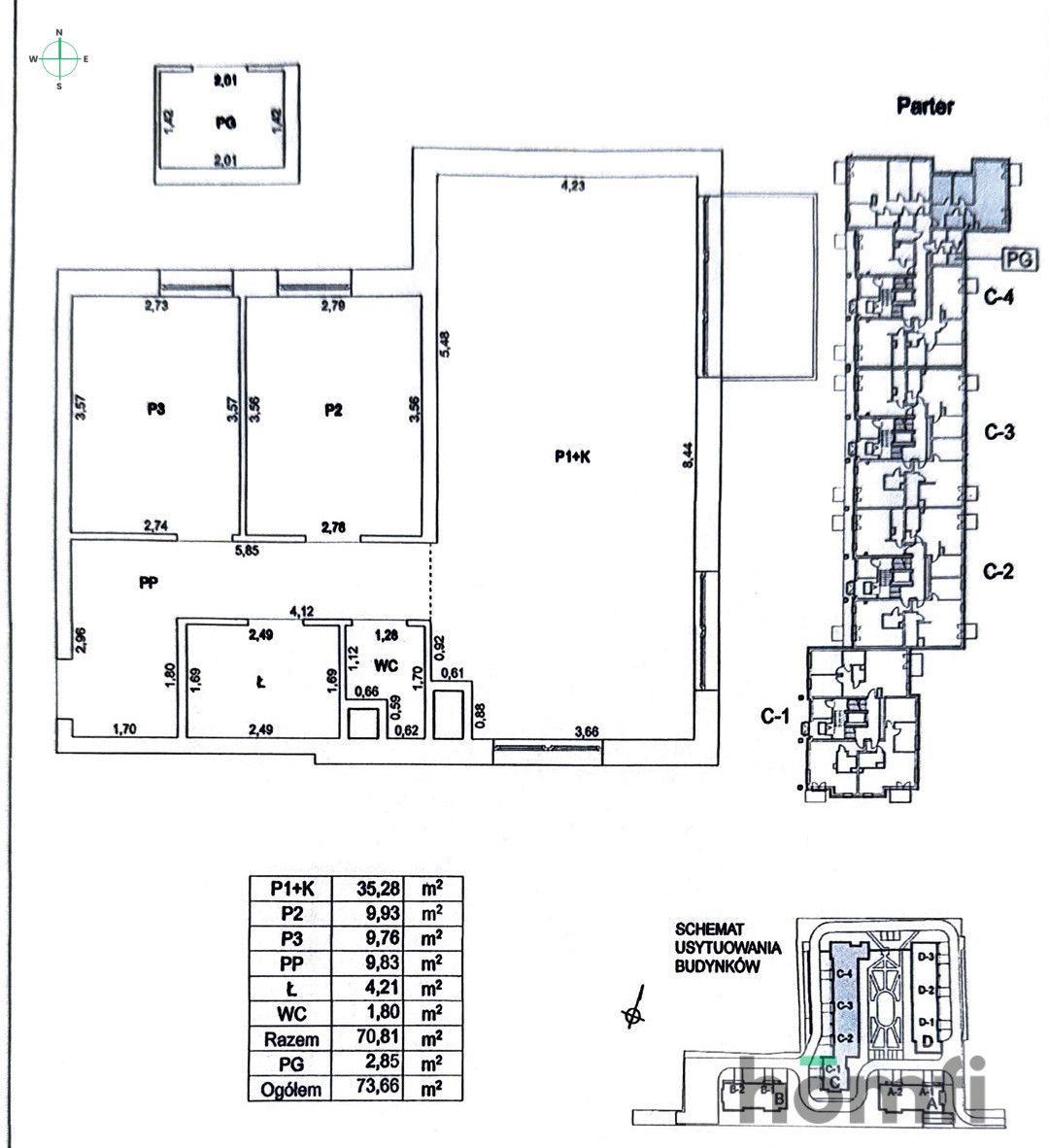
Powierzchnia
71 m²
Pokoje
3
Toalety
1
Sypialnie
2
Miejsca park. podziemne
1
Ogrzewanie
Miejskie
Mieszkanie wielopoziomowe
NIE
Umeblowane
TAK
Umeblowanie
Częściowo
Garderoba
NIE
Balkon/taras
TAK
Klimatyzacja
NIE
Mieszkanie z antresolą
NIE
Podnajem
NIE
Wyposażenie łazienek
Wanna
Umywalka
WC
Suszarka
Grzejnik drabinkowy
Pralka
Budynek
Rodzaj budynku
Wysoki blok
Winda
TAK
Recepcja
NIE
Basen
NIE
Fitness
NIE
Parking naziemny
TAK
Parking podziemny
TAK
Garaż
TAK
Monitoring
TAK
Ochrona
TAK
Teren ogrodzony
TAK
Opłaty
Cena
3 300 zł
Czynsz administracyjny
740 zł
Cena za m²
46 zł/m²
Oferta
ID oferty
52039/OMW
3-pokojowe mieszkanie z garażem i komórką
Wynajem – Łódź, ul. Łąkowa | 71 m² | 3 pokoje | garaż i komórka w cenie
Z przyjemnością prezentujemy funkcjonalne, trzypokojowe mieszkanie o powierzchni 70,81 m², zlokalizowane przy ul. Łąkowej 27 – w jednej z najbardziej pożądanych lokalizacji w centrum Łodzi, a jednocześnie w wyjątkowo cichej i zielonej części miasta.
Układ mieszkania:
• przestronny salon z aneksem kuchennym i wyspą do własnej aranżacji,
• dwie niezależne sypialnie,
• łazienka z wanną,
• osobna toaleta,
• balkon.
Wyposażenie i standard:
Mieszkanie zostało wykończone w wysokim standardzie. W salonie oraz w jednej z sypialni znajdują się pojemne szafy w zabudowie. Kuchnia w pełni wyposażona w sprzęty AGD: zmywarka, piekarnik, płyta indukcyjna, lodówka, okap. W łazience dostępna jest pralka i suszarka. Do uzupełnienia – na koszt najemcy – pozostają tylko meble wypoczynkowe: sofa i łóżko.
W cenie najmu:
• miejsce postojowe w garażu podziemnym,
• komórka lokatorska zlokalizowana tuż przy mieszkaniu.
Koszty:
• czynsz najmu: 3 300 LN
• czynsz administracyjny : ok. 740 PLN
• prąd: zaliczkowo ok. 200 PLN
• kaucja: 120% czynszu najmu
Atuty osiedla:
• zaciszne, zielone patio mimo centralnej lokalizacji,
• całodobowa ochrona i monitoring,
• nowoczesna architektura i wysoki standard części wspólnych,
• bliskość komunikacji miejskiej, sklepów, restauracji, terenów zielonych i punktów usługowych.
Mieszkanie dostępne od zaraz. Idealne dla osób poszukujących komfortu, spokoju i funkcjonalnej przestrzeni w sercu miasta.
Z przyjemnością prezentujemy funkcjonalne, trzypokojowe mieszkanie o powierzchni 70,81 m², zlokalizowane przy ul. Łąkowej 27 – w jednej z najbardziej pożądanych lokalizacji w centrum Łodzi, a jednocześnie w wyjątkowo cichej i zielonej części miasta.
Układ mieszkania:
• przestronny salon z aneksem kuchennym i wyspą do własnej aranżacji,
• dwie niezależne sypialnie,
• łazienka z wanną,
• osobna toaleta,
• balkon.
Wyposażenie i standard:
Mieszkanie zostało wykończone w wysokim standardzie. W salonie oraz w jednej z sypialni znajdują się pojemne szafy w zabudowie. Kuchnia w pełni wyposażona w sprzęty AGD: zmywarka, piekarnik, płyta indukcyjna, lodówka, okap. W łazience dostępna jest pralka i suszarka. Do uzupełnienia – na koszt najemcy – pozostają tylko meble wypoczynkowe: sofa i łóżko.
W cenie najmu:
• miejsce postojowe w garażu podziemnym,
• komórka lokatorska zlokalizowana tuż przy mieszkaniu.
Koszty:
• czynsz najmu: 3 300 LN
• czynsz administracyjny : ok. 740 PLN
• prąd: zaliczkowo ok. 200 PLN
• kaucja: 120% czynszu najmu
Atuty osiedla:
• zaciszne, zielone patio mimo centralnej lokalizacji,
• całodobowa ochrona i monitoring,
• nowoczesna architektura i wysoki standard części wspólnych,
• bliskość komunikacji miejskiej, sklepów, restauracji, terenów zielonych i punktów usługowych.
Mieszkanie dostępne od zaraz. Idealne dla osób poszukujących komfortu, spokoju i funkcjonalnej przestrzeni w sercu miasta.
Lokalizacja
Kredyt
Kontakt
Ups! Ta oferta jest już nieaktualna.
Nic straconego! Skontaktuj się z nami, a znajdziemy dla Ciebie podobną.
Podoba Ci się ta oferta?
Zapisz się na newsletter, aby otrzymywać oferty nieruchomości podobnych do tej.
























