Ділянка на продаж
54.1 ares | Building Permit & Design | Słomiróg, Niepołomice
Słomiróg / Niepołomice, Wielicki
5 410 m²
Słomiróg / Niepołomice, Wielicki
Опис
Ділянка / земля
Площа ділянки
5 410 m²
Ширина ділянки
63 mb.
Довжина ділянки
113 mb.
Під'їзна дорога
Асфальт
Форма ділянки
Прямокутник
Комунальні послуги
Електроенергія
ТАК
Вода
ТАК
Газ
ТАК
Каналізація
ТАК
Умови забудови
Діючий дозвіл на будівництво
ТАК
Призначення
Будівельна
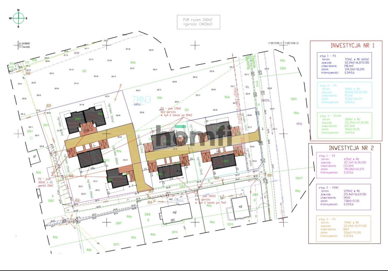
Загальна площа житлового приміщення
1133.73 m²
Оплати
Ціна
1 900 000 zł
Ціна за м²
351 zł/m²
Ціна за загальну площу житлового приміщення
1 676 zł
Пропозиція
ID пропозиції
3009/OGS
54.1 ares | Building Permit & Design | Słomiróg, Niepołomice
For sale: ready-to-develop residential project. An attractive opportunity for an investor interested in development land under the “Buy and Build” formula. A valid building permit, complete construction designs, and an open construction log confirm that the project has been formally commenced and may be continued at any time.
LOCATION
The project is situated in the vicinity of single-family housing, in a quiet and green area. The plots are located on natural elevations, providing attractive views and a strong sense of space.
The buildings have been thoughtfully designed – with careful consideration of the terrain – so that the majority of the apartments can benefit from landscape views and proximity to nature. The layout promotes privacy as well as optimal natural lighting.
Additionally, excellent transport connectivity:
The price includes a complete documentation and permit package, eliminating months of preparatory work and enabling immediate commencement of construction works. The package includes:
In the interest of full transparency, it should be noted that the permit for access from the public road has expired and will require renewal.
FINANCIALS
Mieczysław Unger
Facebook, Instagram & TikTok: @para_na_wylacznosc
Phone: +48 536 790 123
E-mail: m.unger@homfi.com
Did you know that with homfi you can buy real estate comprehensively, arranging everything in one place? In addition to real estate agents assisting in finding and purchasing real estate, we put at your disposal experienced credit experts, talented interior designers and resourceful lease management specialists. Thanks to this, you will find a property with us, finance its purchase, design and finish its interior, and then sell or rent it with the option of lease management.
Interested? Ask the agent for details.
LOCATION
The project is situated in the vicinity of single-family housing, in a quiet and green area. The plots are located on natural elevations, providing attractive views and a strong sense of space.
The buildings have been thoughtfully designed – with careful consideration of the terrain – so that the majority of the apartments can benefit from landscape views and proximity to nature. The layout promotes privacy as well as optimal natural lighting.
Additionally, excellent transport connectivity:
- directly adjacent to DK94 national road,
- 6 km to the A4 motorway,
- 11 km to the Kraków city limits.
The price includes a complete documentation and permit package, eliminating months of preparatory work and enabling immediate commencement of construction works. The package includes:
- Real estate assets – development plots covered by the project.
- Permits and designs – valid building permits for individual buildings and complete architectural designs.
- Utility connection assurances – official connection guarantees from utility providers.
- Agreements with the Municipality of Niepołomice – binding formal agreements.
- Paid utility connection agreements – all connection fees have already been settled.
- Sales materials – professional visualizations of the buildings and the entire development, ready for use in sales and marketing activities.
In the interest of full transparency, it should be noted that the permit for access from the public road has expired and will require renewal.
FINANCIALS
- Saleable residential area (PUM): 1,133.73 sqm (including garages: 1,194.81 sqm)
- Price: PLN 1,900,000
- Price per sqm (PUM): PLN 1,676
Mieczysław Unger
Facebook, Instagram & TikTok: @para_na_wylacznosc
Phone: +48 536 790 123
E-mail: m.unger@homfi.com
Did you know that with homfi you can buy real estate comprehensively, arranging everything in one place? In addition to real estate agents assisting in finding and purchasing real estate, we put at your disposal experienced credit experts, talented interior designers and resourceful lease management specialists. Thanks to this, you will find a property with us, finance its purchase, design and finish its interior, and then sell or rent it with the option of lease management.
Interested? Ask the agent for details.
Місцезнаходження
Кредит
Вам подобається ця нерухомість?
Не чекайте, поки хтось вас випередить - бронюйте онлайн або запропонуйте власну ціну!
Чи подобається вам ця пропозиція?
Підпишіться на розсилку, щоб отримувати пропозиції нерухомості, схожі на цю.
















