Mieszkanie na sprzedaż
Kamieniecka 2, Kraków Dębniki – 3-pokojowe mieszkanie 69 m² z dużym balkonem i strychem
ul. Kamieniecka, Kliny / Podgórze, Kraków
129 m²
ul. Kamieniecka, Kliny / Podgórze, Kraków
Opis
Mieszkanie
Rynek
Wtórny
Piętro
1
Powierzchnia
129 m²
Pokoje
3
Łazienki
1
Sypialnie
2
Wysokość pomieszczeń
2.6 m
Miejsca park. naziemne
1
Stan prawny
Własność
Ogrzewanie
Gazowe
Umeblowane
TAK
Umeblowanie
Tak
Balkon/taras
TAK
Cechy
Dla rodzin z dziećmi
Dla dbających o środowisko
Wyposażenie kuchni
Płyta gazowa
Okap
Zabudowa kuchenna
Lodówka
Piekarnik
Gorąca woda / ciepła woda
Piec gazowy
Budynek
Rodzaj budynku
Dom wielolokalowy
Rok budowy
2009
Liczba pięter
1
Parking naziemny
TAK
Garaż
TAK
Teren ogrodzony
TAK
Opłaty
Cena
750 000 zł
Cena za m²
5 814 zł/m²
Oferta
ID oferty
25627/OMS
Kamieniecka 2, Kraków Dębniki – 3-pokojowe mieszkanie 69 m² z dużym balkonem i strychem
Mieszkanie przy ul. Kamienieckiej 2 to propozycja dla tych, którzy lubią, gdy dom jest „konkretny”: solidny, ciepły w odbiorze i uporządkowany jak dobrze prowadzony planer. Tu drewno gra pierwsze skrzypce, a przestrzeń jest przede wszystkim do wygodnego życia, nie do ciągłego remontowania.
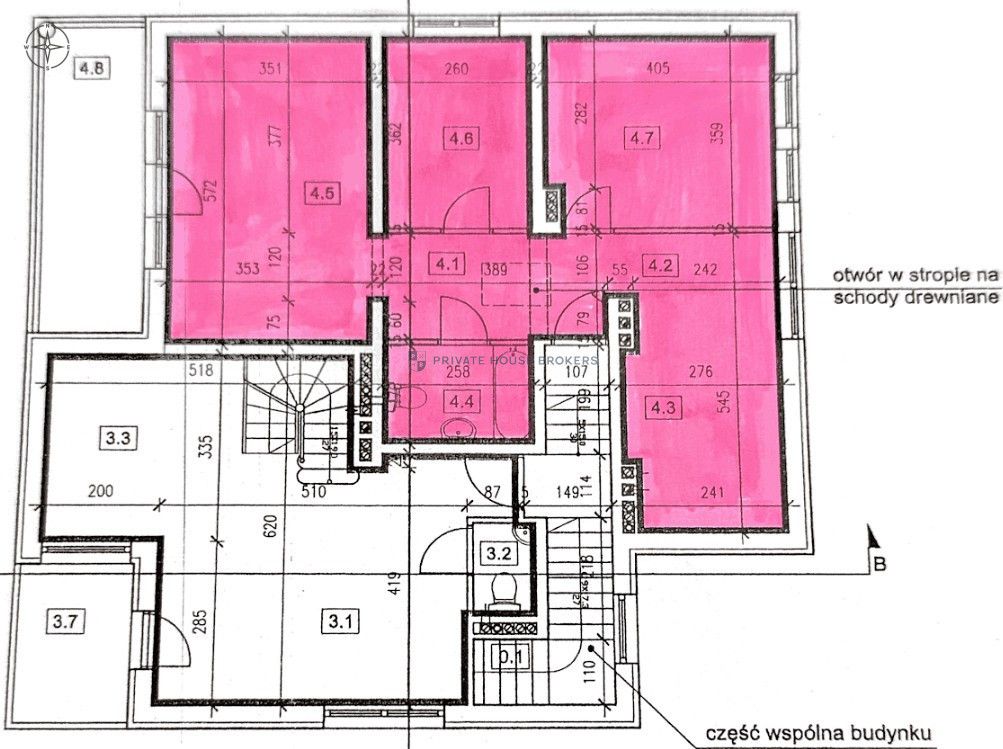
Na pierwszym piętrze kameralnego budynku z 2009 roku czeka 3-pokojowe mieszkanie o pow. 69 m². Układ jest klasyczny i bardzo funkcjonalny:
jasny salon z wyjściem na duży, zadaszony taras, w praktyce drugi letni salon, idealny na poranną kawę lub joge;
ustawna sypialnia z pojemnymi meblami, które bez problemu zmieszczą całą garderobę;
dodatkowy pokój, gotowy, by stać się pokojem dziecka, gabinetem albo pokojem gościnnym.
Do tego osobna, duża kuchnia w zabudowie, w której swobodnie gotuje się dla całej rodziny, oraz wygodna łazienka z wanną.
Wnętrza są utrzymane w spójnym, ciepłym stylu- dużo litego drewna, naturalne kolory ścian, klasyczne meble w bardzo dobrym stanie. To mieszkanie z kategorii „wchodzisz, stawiasz kubek na blacie i po prostu mieszkasz”, a nie „najpierw trzy miesiące z ekipą”.
Mocnym atutem jest strych ujęty w księdze wieczystej – razem metraż wpisany do KW to 129 m². Dziś pełni funkcję obszernej przestrzeni do przechowywania, ale dla kogoś z wyobraźnią może stać się miejscem na pracownię, domowy magazyn dla biznesu online czy po prostu świetnie zorganizowany schowek na wszystko, czego nie chcesz oglądać na co dzień.
Adres Kamieniecka 2 to południowy Kraków, Dzielnica VIII Dębniki – spokojna, rodzinna okolica w rejonie Klin / osiedla Pod Fortem. W bezpośrednim sąsiedztwie masz pełną codzienną infrastrukturę: na parterze budynku działa publiczne przedszkole „Tuptusiowo”
, w zasięgu krótkiego spaceru są lokalne sklepy, punkty usługowe, przychodnie, kluby fitness. Samochodem w kilka minut dojedziesz do Zakopianki i obwodnicy, a wraz z nimi do parków handlowych, kina i większych marketów. Dla równowagi masz też blisko tereny zielone – okolice Lasu Borkowskiego i Parku Maćka i Doroty sprzyjają spacerom i bieganiu.
Komunikacja miejska opiera się tu na liniach autobusowych kursujących ulicami Zawiła, Borkowska i Bartla, które łączą tę część Dębnik z centrum, Ruczajem i innymi dzielnicami miasta. Na codzienny dojazd do pracy czy szkoły nie trzeba tu planować wyprawy z wyprzedzeniem – wystarczy kilka klików w JakDojadę.
Dla osób zmotoryzowanych dostępna jest możliwość zakupu dużego garażu z miejscem postojowym w cenie 130 000 zł – idealny pakiet dla rodziny z dwoma autami, motocyklem albo po prostu z większą ilością rzeczy, które lepiej trzymać „pod dachem”. Zakup garażu nie jest obowiązkowy – możesz dopasować komplet do swoich potrzeb.
Podsumowanie kluczowych atutów:
– Kraków, Dębniki, ul. Kamieniecka 2 – spokojna, rodzinna okolica z pełną infrastrukturą;
– 69 m² wygodnej przestrzeni mieszkalnej + ok. 60 m² strychu w KW (łącznie 129 m²);
– 3 pokoje, osobna jasna kuchnia, łazienka z wanną, duży zadaszony balkon;
– 1. piętro w budynku z 2009 r.;
– możliwość zakupu garażu z miejscem postojowym za 130 000 zł;
– gotowe do zamieszkania, z zadbanym, spójnym wyposażeniem.
To mieszkanie jest dobrą propozycją dla rodziny, pary pracującej hybrydowo czy kogoś, kto szuka spokojnej bazy w mieście – z miejscem na życie, pracę i przechowywanie wszystkiego, co zwykle „nie mieści się” w standardowym M.
Jeśli wolisz możesz napisać do mnie ina Instagramie: szczconsulting
Posiadasz nieruchomość, którą chcesz wynająć lub sprzedać? Na hasło "internet" otrzymasz 15% zniżki.
Zainteresowany? Skontaktuj się z nami pod numerem +48 536 411 123 lub napisz nam maila poprzez formularz kontaktowy dostępny w ogłoszeniu.
Czy wiesz, że z Private House Brokers możesz kupić nieruchomość kompleksowo, tzn. załatwiając wszystko w jednej firmie? Oprócz agentów nieruchomości pomagających w znalezieniu i zakupie nieruchomości, oddajemy Ci do dyspozycji doświadczonych ekspertów kredytowych, zdolnych architektów wnętrz i zaradnych specjalistów od zarządzania najmem.
Dzięki temu z nami znajdziesz nieruchomość, sfinansujesz jej zakup, zaprojektujesz i wykończysz jej wnętrze a następnie sprzedasz lub wynajmiesz z opcją przekazania nam nieruchomości do zarządzania najmem.
Zapytaj opiekuna oferty o szczegóły.
Na pierwszym piętrze kameralnego budynku z 2009 roku czeka 3-pokojowe mieszkanie o pow. 69 m². Układ jest klasyczny i bardzo funkcjonalny:
jasny salon z wyjściem na duży, zadaszony taras, w praktyce drugi letni salon, idealny na poranną kawę lub joge;
ustawna sypialnia z pojemnymi meblami, które bez problemu zmieszczą całą garderobę;
dodatkowy pokój, gotowy, by stać się pokojem dziecka, gabinetem albo pokojem gościnnym.
Do tego osobna, duża kuchnia w zabudowie, w której swobodnie gotuje się dla całej rodziny, oraz wygodna łazienka z wanną.
Wnętrza są utrzymane w spójnym, ciepłym stylu- dużo litego drewna, naturalne kolory ścian, klasyczne meble w bardzo dobrym stanie. To mieszkanie z kategorii „wchodzisz, stawiasz kubek na blacie i po prostu mieszkasz”, a nie „najpierw trzy miesiące z ekipą”.
Mocnym atutem jest strych ujęty w księdze wieczystej – razem metraż wpisany do KW to 129 m². Dziś pełni funkcję obszernej przestrzeni do przechowywania, ale dla kogoś z wyobraźnią może stać się miejscem na pracownię, domowy magazyn dla biznesu online czy po prostu świetnie zorganizowany schowek na wszystko, czego nie chcesz oglądać na co dzień.
Adres Kamieniecka 2 to południowy Kraków, Dzielnica VIII Dębniki – spokojna, rodzinna okolica w rejonie Klin / osiedla Pod Fortem. W bezpośrednim sąsiedztwie masz pełną codzienną infrastrukturę: na parterze budynku działa publiczne przedszkole „Tuptusiowo”
, w zasięgu krótkiego spaceru są lokalne sklepy, punkty usługowe, przychodnie, kluby fitness. Samochodem w kilka minut dojedziesz do Zakopianki i obwodnicy, a wraz z nimi do parków handlowych, kina i większych marketów. Dla równowagi masz też blisko tereny zielone – okolice Lasu Borkowskiego i Parku Maćka i Doroty sprzyjają spacerom i bieganiu.
Komunikacja miejska opiera się tu na liniach autobusowych kursujących ulicami Zawiła, Borkowska i Bartla, które łączą tę część Dębnik z centrum, Ruczajem i innymi dzielnicami miasta. Na codzienny dojazd do pracy czy szkoły nie trzeba tu planować wyprawy z wyprzedzeniem – wystarczy kilka klików w JakDojadę.
Dla osób zmotoryzowanych dostępna jest możliwość zakupu dużego garażu z miejscem postojowym w cenie 130 000 zł – idealny pakiet dla rodziny z dwoma autami, motocyklem albo po prostu z większą ilością rzeczy, które lepiej trzymać „pod dachem”. Zakup garażu nie jest obowiązkowy – możesz dopasować komplet do swoich potrzeb.
Podsumowanie kluczowych atutów:
– Kraków, Dębniki, ul. Kamieniecka 2 – spokojna, rodzinna okolica z pełną infrastrukturą;
– 69 m² wygodnej przestrzeni mieszkalnej + ok. 60 m² strychu w KW (łącznie 129 m²);
– 3 pokoje, osobna jasna kuchnia, łazienka z wanną, duży zadaszony balkon;
– 1. piętro w budynku z 2009 r.;
– możliwość zakupu garażu z miejscem postojowym za 130 000 zł;
– gotowe do zamieszkania, z zadbanym, spójnym wyposażeniem.
To mieszkanie jest dobrą propozycją dla rodziny, pary pracującej hybrydowo czy kogoś, kto szuka spokojnej bazy w mieście – z miejscem na życie, pracę i przechowywanie wszystkiego, co zwykle „nie mieści się” w standardowym M.
Jeśli wolisz możesz napisać do mnie ina Instagramie: szczconsulting
Posiadasz nieruchomość, którą chcesz wynająć lub sprzedać? Na hasło "internet" otrzymasz 15% zniżki.
Zainteresowany? Skontaktuj się z nami pod numerem +48 536 411 123 lub napisz nam maila poprzez formularz kontaktowy dostępny w ogłoszeniu.
Czy wiesz, że z Private House Brokers możesz kupić nieruchomość kompleksowo, tzn. załatwiając wszystko w jednej firmie? Oprócz agentów nieruchomości pomagających w znalezieniu i zakupie nieruchomości, oddajemy Ci do dyspozycji doświadczonych ekspertów kredytowych, zdolnych architektów wnętrz i zaradnych specjalistów od zarządzania najmem.
Dzięki temu z nami znajdziesz nieruchomość, sfinansujesz jej zakup, zaprojektujesz i wykończysz jej wnętrze a następnie sprzedasz lub wynajmiesz z opcją przekazania nam nieruchomości do zarządzania najmem.
Zapytaj opiekuna oferty o szczegóły.
Lokalizacja
Kredyt
Podoba Ci się ta nieruchomość?
Nie czekaj aż ktoś Cię ubiegnie - zarezerwuj online lub zaproponuj swoją cenę!
Podoba Ci się ta oferta?
Zapisz się na newsletter, aby otrzymywać oferty nieruchomości podobnych do tej.

















