Dom na sprzedaż
Nowoczesne domy w Krakowie
ul. gen. Jana Karcza, Kraków
155 m²
ul. gen. Jana Karcza, Kraków
Opis
Dom
Rynek
Pierwotny
Typ budynku
Bliźniak
Powierzchnia
155 m²
Pokoje
4
Łazienki
2
Toalety
2
Sypialnie
3
Piwnica
TAK
Stan prawny
Własność
Rok budowy
2010
Garderoba
TAK
Balkon/taras
TAK
Gorąca woda / ciepła woda
Wodociąg miejski
Działka
Ukształtowanie działki
Płaska
Plan miejscowy
Plan zagospodarowania przestrzennego
Opłaty
Cena
1 520 000 zł
Cena za m²
9 806 zł/m²
Oferta
ID oferty
6515/ODS
Nowoczesne domy w Krakowie
Nowoczesne domy w Krakowie
Zapraszam do zapoznania się z ofertą sprzedaży nowoczesnych domów w inwestycji domy na Zielonym Uroczysko, zlokalizowanej w malowniczej i spokojnej okolicy przy ul. Karcza w Krakowie. Sprzedajemy domy w wyjątkowej inwestycji liczącej 4 budynki, graniczącej bezpośrednio z obszarem Natura 2000 – gwarancja ciszy, zieleni i nieskażonej przyrody.
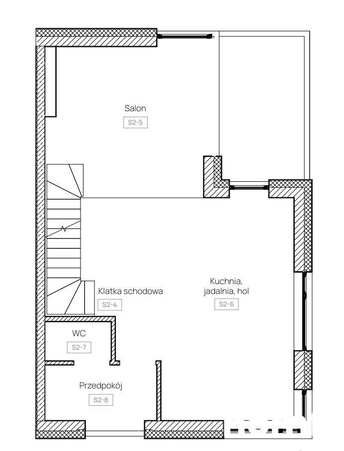
Każdy dom o powierzchni użytkowej blisko 155 m² składa się z 3 kondygnacji, oferując:
Piwnica: garaż, kotłownia, pomieszczenie rekreacyjne.
Parter: przestronny salon z dużymi oknami, jadalnię z aneksem kuchennym, toaleta, przedpokój.
Piętro: 3 ustawne sypialnie, łazienka, korytarz.
Ogród i miejsca postojowe: Każdy dom posiada prywatny ogród o powierzchni około od 135 m² do 322 m² . dodatkowo do każdego z domów jest przynależny taras o powierzchni około 11 m², który można zaaranżować także jako ogród zimowy. W bryle każdego z dom znajduje się garaż o powierzchni około 35 m², a także miejsce postojowe przed każdym z domów.
Standard premium wykończenia: Inwestycja wyróżnia się wysoką jakością wykonania oraz dbałością o detale Elektryczne rolety, ciepła podłoga i nowoczesny piec dwufunkcyjny – wszystko to w standardzie Twojego nowego domu! A dodatkowo:
Duże okna sięgające podłogi w salonie, jadalni oraz sypialniach, zapewniające doskonałe doświetlenie i nowoczesny charakter wnętrz.
Wysokiej jakości elewacje gwarantująca trwałość i elegancki wygląd budynku.
Ogrzewanie podłogowe na wszystkich kondygnacjach, w tym na poddaszu, zapewniające równomierne rozprowadzenie ciepła i komfort termiczny.
Każdy z domów został wyposażony w nowoczesny system rekuperacji, zapewniający stały dopływ świeżego powietrza oraz oszczędność energii.
Lokalizacja:
Domy na Zielonym Uroczysku to kameralna inwestycja położona w otulinie Bielańsko-Tynieckiego Parku Krajobrazowego, przy cichej, niewielkiej ulicy, w bezpośrednim sąsiedztwie terenów Natura 2000. Lokalizacja zapewnia szybki dostęp – zaledwie 5 minut do Kampusu UJ na Ruczaju, pętli tramwajowej Czerwone Maki oraz kompleksu biurowców. Do centrum Krakowa można dotrzeć w około 15 minut, a bliskość autostrady A4 oraz lotniska w Balicach gwarantuje doskonałą komunikację zarówno w mieście, jak i poza nim.
Oddanie domów do użytkowania nastąpi w czerwcu 2025 roku.
Domy na Zielonym Uroczysku to idealna propozycja dla osób poszukujących nowoczesnego i przestronnego domu w spokojnej, zielonej okolicy, z dogodnym dojazdem do Krakowa. Zapraszamy do kontaktu w celu uzyskania dodatkowych informacji oraz umówienia się na prezentację.
CENA 1500000 PLN
BIURO SPRZEDAŻY INWESTYCJI:
Justyna Bielacha
+48 692 199 381
j.bielacha@homfi.com
Zainteresowany? Zapytaj opiekuna oferty o szczegóły.
Zapraszam do zapoznania się z ofertą sprzedaży nowoczesnych domów w inwestycji domy na Zielonym Uroczysko, zlokalizowanej w malowniczej i spokojnej okolicy przy ul. Karcza w Krakowie. Sprzedajemy domy w wyjątkowej inwestycji liczącej 4 budynki, graniczącej bezpośrednio z obszarem Natura 2000 – gwarancja ciszy, zieleni i nieskażonej przyrody.
Każdy dom o powierzchni użytkowej blisko 155 m² składa się z 3 kondygnacji, oferując:
Piwnica: garaż, kotłownia, pomieszczenie rekreacyjne.
Parter: przestronny salon z dużymi oknami, jadalnię z aneksem kuchennym, toaleta, przedpokój.
Piętro: 3 ustawne sypialnie, łazienka, korytarz.
Ogród i miejsca postojowe: Każdy dom posiada prywatny ogród o powierzchni około od 135 m² do 322 m² . dodatkowo do każdego z domów jest przynależny taras o powierzchni około 11 m², który można zaaranżować także jako ogród zimowy. W bryle każdego z dom znajduje się garaż o powierzchni około 35 m², a także miejsce postojowe przed każdym z domów.
Standard premium wykończenia: Inwestycja wyróżnia się wysoką jakością wykonania oraz dbałością o detale Elektryczne rolety, ciepła podłoga i nowoczesny piec dwufunkcyjny – wszystko to w standardzie Twojego nowego domu! A dodatkowo:
Duże okna sięgające podłogi w salonie, jadalni oraz sypialniach, zapewniające doskonałe doświetlenie i nowoczesny charakter wnętrz.
Wysokiej jakości elewacje gwarantująca trwałość i elegancki wygląd budynku.
Ogrzewanie podłogowe na wszystkich kondygnacjach, w tym na poddaszu, zapewniające równomierne rozprowadzenie ciepła i komfort termiczny.
Każdy z domów został wyposażony w nowoczesny system rekuperacji, zapewniający stały dopływ świeżego powietrza oraz oszczędność energii.
Lokalizacja:
Domy na Zielonym Uroczysku to kameralna inwestycja położona w otulinie Bielańsko-Tynieckiego Parku Krajobrazowego, przy cichej, niewielkiej ulicy, w bezpośrednim sąsiedztwie terenów Natura 2000. Lokalizacja zapewnia szybki dostęp – zaledwie 5 minut do Kampusu UJ na Ruczaju, pętli tramwajowej Czerwone Maki oraz kompleksu biurowców. Do centrum Krakowa można dotrzeć w około 15 minut, a bliskość autostrady A4 oraz lotniska w Balicach gwarantuje doskonałą komunikację zarówno w mieście, jak i poza nim.
Oddanie domów do użytkowania nastąpi w czerwcu 2025 roku.
Domy na Zielonym Uroczysku to idealna propozycja dla osób poszukujących nowoczesnego i przestronnego domu w spokojnej, zielonej okolicy, z dogodnym dojazdem do Krakowa. Zapraszamy do kontaktu w celu uzyskania dodatkowych informacji oraz umówienia się na prezentację.
CENA 1500000 PLN
BIURO SPRZEDAŻY INWESTYCJI:
Justyna Bielacha
+48 692 199 381
j.bielacha@homfi.com
KONTAKT:
Zainteresowany? Skontaktuj się z nami pod numerem +48 799 350 796 lub napisz nam maila poprzez formularz kontaktowy dostępny w ogłoszeniu.Czy wiesz, że z homfi możesz kupić nieruchomość kompleksowo, tzn. załatwiając wszystko w jednej firmie? Oprócz agentów nieruchomości pomagających w znalezieniu i zakupie nieruchomości, oddajemy Ci do dyspozycji doświadczonych ekspertów kredytowych, zdolnych architektów wnętrz i zaradnych specjalistów od zarządzania najmem. Dzięki temu z nami znajdziesz nieruchomość, sfinansujesz jej zakup, zaprojektujesz i wykończysz jej wnętrze a następnie sprzedasz lub wynajmiesz z opcją przekazania nam nieruchomości do zarządzania najmem.Zainteresowany? Zapytaj opiekuna oferty o szczegóły.
Lokalizacja
Kredyt
Podoba Ci się ta nieruchomość?
Nie czekaj aż ktoś Cię ubiegnie - zarezerwuj online lub zaproponuj swoją cenę!
Podoba Ci się ta oferta?
Zapisz się na newsletter, aby otrzymywać oferty nieruchomości podobnych do tej.















