Mieszkanie na sprzedaż
Dwupokojowe mieszkanie na Starym Mieście ul.Spasowskiego/Łobzowska
ul. Władysława Spasowskiego, Stare Miasto / Śródmieście, Kraków
32 m²
ul. Władysława Spasowskiego, Stare Miasto / Śródmieście, Kraków
Opis
Mieszkanie
Rynek
Wtórny
Powierzchnia
32 m²
Pokoje
2
Łazienki
1
Sypialnie
1
Stan prawny
Własność
Ogrzewanie
Miejskie
Umeblowane
TAK
Umeblowanie
Częściowo
Wyposażenie kuchni
Lodówka
Płyta elektryczna
Meble w kuchni
Zlewozmywak
Zabudowa kuchenna
Pralka
Zmywarka
Piekarnik
Zamrażarka
Wyposażenie łazienek
Wanna
Grzejnik drabinkowy
WC
Umywalka
Budynek
Rodzaj budynku
Niski blok
Rok budowy
1970
Liczba pięter
3
Winda
NIE
Parking naziemny
TAK
Opłaty
Cena
795 000 zł
Czynsz administracyjny
500 zł
Cena za m²
24 469 zł/m²
Oferta
ID oferty
23839/OMS
Dwupokojowe mieszkanie na Starym Mieście ul.Spasowskiego/Łobzowska
Na sprzedaż dwupokojowe mieszkanie na Starym Mieście, u zbiegu ulic Łobzowskiej i Spasowskiego - ogrzewanie MPEC.
LOKALIZACJA:
Kamienica położona jest w ścisłym centrum miasta przy ul. Łobzowskiej, kilkaset metrów od Rynku Głównego. Na niezwykłą atrakcyjność tego miejsca wpływa bliskość Błoń, teatrów, Filharmonii, niezliczonych restauracji i punktów usługowych. W pobliżu znajduje się gęsta sieć komunikacyjna, przystanki tramwajowe oraz autobusowe (m. in Plac Inwalidów, Nowy Kleparz), liczne sklepy, apteka, piekarnia, banki.
MIESZKANIE:
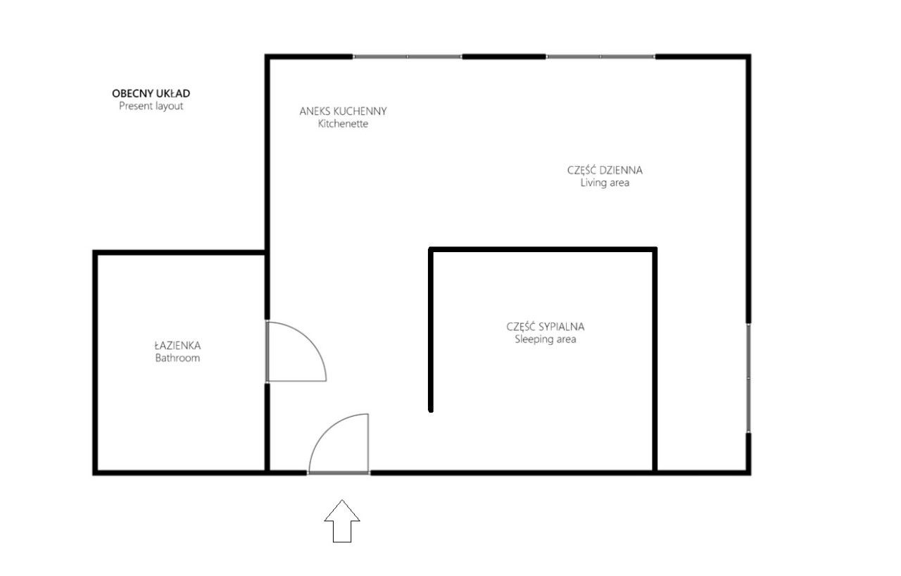
Znajduje się na bardzo wysokim parterze, zadbanego budynku z kontrolą dostępu oraz ogrzewaniem z sieci miejskiej. Mieszkanie ma powierzchnię 32,49m2 i składa się z: pokoju dziennego z aneksem kuchennym, sypialni oraz łazienki. Mieszkanie jest narożne z dużą ilością okien przez co jest bardzo dobrze doświetlone.
Mieszkanie jest wyposażone m.in. w pralkę, lodówkę z zamrażarką, zmywarkę, płytę grzewczą oraz piekarnik.
UWAGI:
Zainteresowany? Skontaktuj się z nami pod numerem +48 799 350 796 lub napisz nam maila poprzez formularz kontaktowy dostępny w ogłoszeniu.
Czy wiesz, że z Private House Brokers możesz kupić nieruchomość kompleksowo, tzn. załatwiając wszystko w jednej firmie? Oprócz agentów nieruchomości pomagających w znalezieniu i zakupie nieruchomości, oddajemy Ci do dyspozycji doświadczonych ekspertów kredytowych, zdolnych architektów wnętrz i zaradnych specjalistów od zarządzania najmem.
Dzięki temu z nami znajdziesz nieruchomość, sfinansujesz jej zakup, zaprojektujesz i wykończysz jej wnętrze a następnie sprzedasz lub wynajmiesz z opcją przekazania nam nieruchomości do zarządzania najmem.
Zapytaj opiekuna oferty o szczegóły.
LOKALIZACJA:
Kamienica położona jest w ścisłym centrum miasta przy ul. Łobzowskiej, kilkaset metrów od Rynku Głównego. Na niezwykłą atrakcyjność tego miejsca wpływa bliskość Błoń, teatrów, Filharmonii, niezliczonych restauracji i punktów usługowych. W pobliżu znajduje się gęsta sieć komunikacyjna, przystanki tramwajowe oraz autobusowe (m. in Plac Inwalidów, Nowy Kleparz), liczne sklepy, apteka, piekarnia, banki.
MIESZKANIE:
Znajduje się na bardzo wysokim parterze, zadbanego budynku z kontrolą dostępu oraz ogrzewaniem z sieci miejskiej. Mieszkanie ma powierzchnię 32,49m2 i składa się z: pokoju dziennego z aneksem kuchennym, sypialni oraz łazienki. Mieszkanie jest narożne z dużą ilością okien przez co jest bardzo dobrze doświetlone.
Mieszkanie jest wyposażone m.in. w pralkę, lodówkę z zamrażarką, zmywarkę, płytę grzewczą oraz piekarnik.
UWAGI:
- mieszkanie wyposażone
- mieszkanie świeżo po częściowym remoncie (odmalowane, wymienione panele)
- ogrzewanie z sieci miejskiej
- zadbana kamienica z kontrolą dostępu
Zainteresowany? Skontaktuj się z nami pod numerem +48 799 350 796 lub napisz nam maila poprzez formularz kontaktowy dostępny w ogłoszeniu.
Czy wiesz, że z Private House Brokers możesz kupić nieruchomość kompleksowo, tzn. załatwiając wszystko w jednej firmie? Oprócz agentów nieruchomości pomagających w znalezieniu i zakupie nieruchomości, oddajemy Ci do dyspozycji doświadczonych ekspertów kredytowych, zdolnych architektów wnętrz i zaradnych specjalistów od zarządzania najmem.
Dzięki temu z nami znajdziesz nieruchomość, sfinansujesz jej zakup, zaprojektujesz i wykończysz jej wnętrze a następnie sprzedasz lub wynajmiesz z opcją przekazania nam nieruchomości do zarządzania najmem.
Zapytaj opiekuna oferty o szczegóły.
Lokalizacja
Kredyt
Podoba Ci się ta nieruchomość?
Nie czekaj aż ktoś Cię ubiegnie - zarezerwuj online lub zaproponuj swoją cenę!
Podoba Ci się ta oferta?
Zapisz się na newsletter, aby otrzymywać oferty nieruchomości podobnych do tej.

























