Opis
Lokal użytkowy
Rynek
Wtórny
Powierzchnia
162 m²
Liczba pomieszczeń
8
Dostępne od
01.10.2024
Przeznaczenie
Handlowo/Usługowe
Open space
TAK
Podnajem
TAK
Cechy
Dla właścicieli zwierząt
Budynek
Rodzaj budynku
Wysoki blok
Monitoring
NIE
Kontrola dostępu
NIE
Ścianki działowe
TAK
Okablowanie elektryczne
TAK
Zaplecze socjalne
TAK
Ogrzewanie
TAK
Otwierane okna
TAK
Witryna
TAK
Możliwość gastronomii
NIE
Opłaty
Cena
4 000 zł
Cena za m²
25 zł/m²
Oferta
ID oferty
9800/OLW
Lokal 161m2 opłaty w cenie ul. Kręta - Nadodrze
Na wynajem lokal na parterze o powierzchni 161,5m2 we Wrocławiu na ul. Krętej (Nadodrze-Śródmieście)
LOKAL DOSTĘPNY OD 1.10.2024
Do Rynku mamy stąd 1,5 km. W najbliżej okolicy znajdziemy:
Posiada 2 wejścia od frontu od ul. Krętej oraz od podwórka.
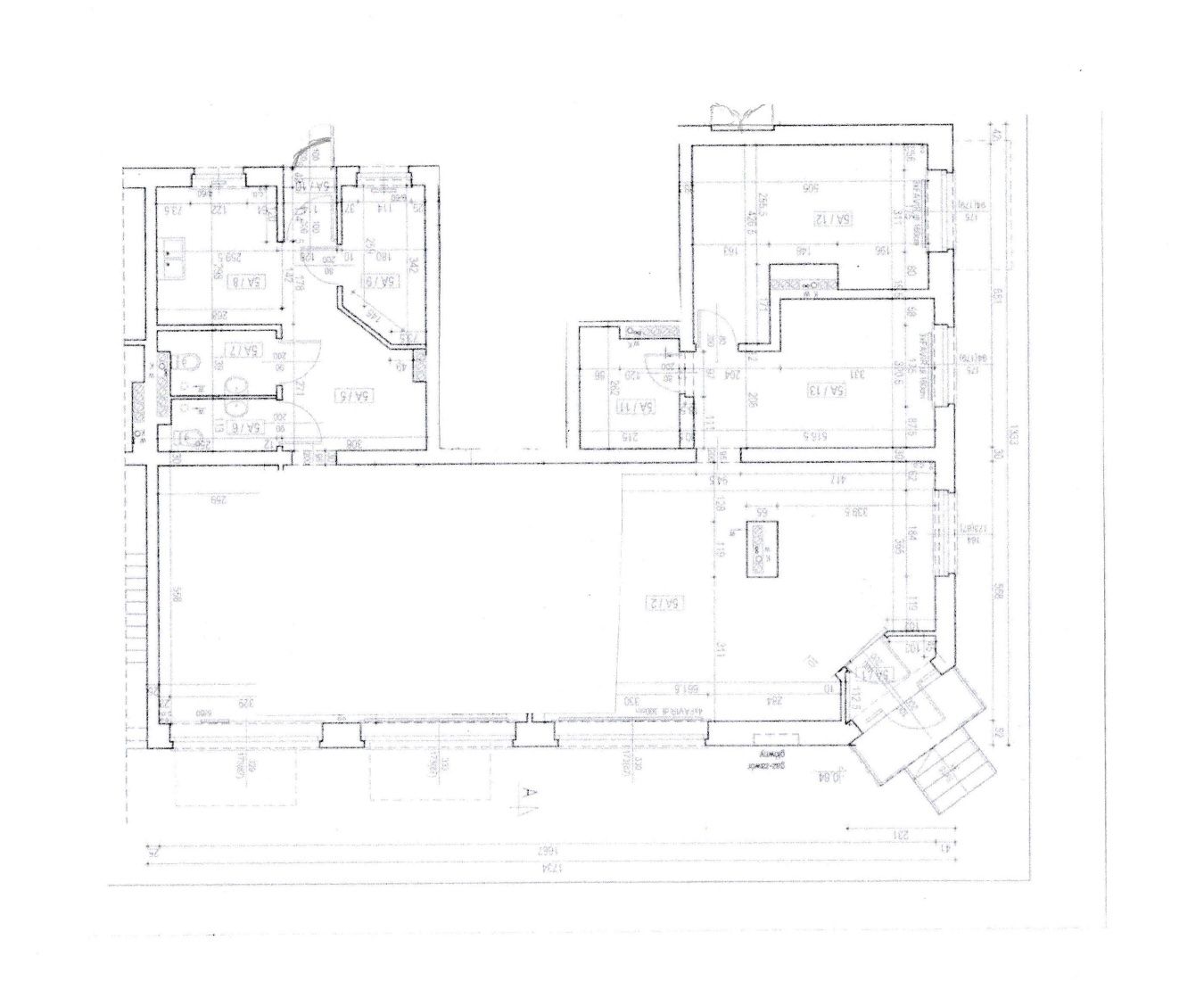
Zachęcam do sprawdzenia rzutu w ogłoszeniu.
Najważniejsze informacje:
8000 PLN kaucja
Zainteresowany? Skontaktuj się z nami pod numerem +48 799 350 796 lub napisz nam mail poprzez formularz kontaktowy dostępny w ogłoszeniu
LOKAL DOSTĘPNY OD 1.10.2024
LOKALIZACJA:
Nieruchomość znajduje się na wrocławskim Nadodrzu. Znanym z kolorowych podwórek i artystycznego klimatu.Do Rynku mamy stąd 1,5 km. W najbliżej okolicy znajdziemy:
- przystanki tramwajowe i autobusowe a nieco dalej stację PKP Wrocław Nadodrze
- sklepy Żabka, Biedronka i inne
- restauracje Mango Mama, Wilk Syty, Pierogarnia, Sushi i inne
- park Słowiański, Staszica, pl. św. Macieja oraz bliskość Odry
NIERUCHOMOŚĆ:
Lokal składa się z sali sprzedażowej oraz zaplecza / powierzchni magazynowej. Do tego znajdziemy w nim kuchnię oraz toaletę.Posiada 2 wejścia od frontu od ul. Krętej oraz od podwórka.
Zachęcam do sprawdzenia rzutu w ogłoszeniu.
Najważniejsze informacje:
- powierzchnia 161,5m2
- duża witryna od ulicy
- lokal na parterze
- ogrzewanie i ciepła woda miejskie
- na podłodze panele (do wymiany)
- prąd przepisywany na najemcę
- miejsca parkingowe ogólnodostępne przed budynkiem
CENA I OPŁATY:
4000 PLN netto czynsz najmu + 3802 PLN brutto opłaty eksploatacyjne = całość 8722 PLN brutto8000 PLN kaucja
Zainteresowany? Skontaktuj się z nami pod numerem +48 799 350 796 lub napisz nam mail poprzez formularz kontaktowy dostępny w ogłoszeniu
Lokalizacja
Kredyt
Kontakt
Ups! Ta oferta jest już nieaktualna.
Nic straconego! Skontaktuj się z nami, a znajdziemy dla Ciebie podobną.
Podoba Ci się ta oferta?
Zapisz się na newsletter, aby otrzymywać oferty nieruchomości podobnych do tej.


























