Opis
Dom
Rynek
Wtórny
Typ budynku
Wolnostojący
Liczba pięter
2
Powierzchnia
170 m²
Pokoje
5
Łazienki
2
Sypialnie
4
Gaz
NIE
Prąd
TAK
Szambo
TAK
Stan prawny
Własność
Stan budynku
Bardzo dobry
Ogrzewanie
Piec
Dach
Dachówka
Umeblowane
TAK
Balkon/taras
TAK
Garaż
TAK
Działka
Pow. działki
1 581 m²
Teren ogrodzony
TAK
Kształt działki
Kwadrat
Opłaty
Cena
729 000 zł
Cena za m²
4 288 zł/m²
Oferta
ID oferty
5891/ODS
Na sprzedaż 170 m2 dom w Jasionna/Wronki
Na sprzedaż 170 m2 dom w Jasionna/Wronki
Zapraszam do zapoznania się z ofertą sprzedaży pięknego domu w miejscowości Jasionna , gm. Wronki pow. szamotulski, o powierzchni 173 m2, usytuowanego na działce o powierzchni 1581 m2.
Nieruchomość położona jest na spokojnym osiedlu domków jednorodzinnych w niezwykle malowniczym otoczeniu lasów. Kilkanaście minut jazdy autem znajdują się sklepy spożywcze, szkoły, przedszkole, kościół, ośrodek zdrowia czy dom kultury.
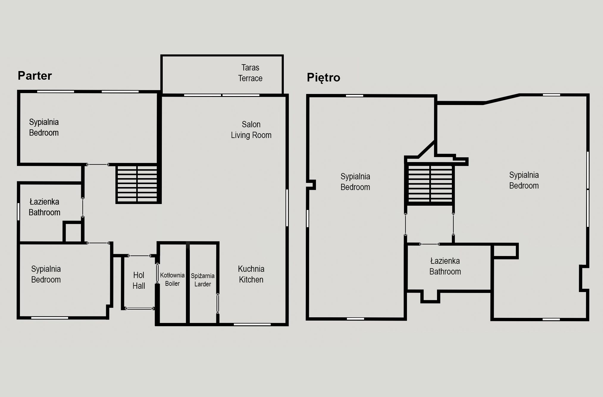
Dom składa się z parteru, piętra oraz użytkowego strychu. Na parterze, znajduje się przestronny salon z jadalnią z wyjściem na taras, kuchnia , spiżarnia, łazienka dla gości z kabiną prysznicową, sypialnia oraz pokój gościnny, a także pomieszczenie gospodarcze posiadające funkcję kotłowni.
Na piętrze mieszczą się dwa przestronne pokoje oraz łazienka
Dom uzupełnia drewniany taras i pięknie urządzony ogród. Do domu są dwa garaże wolnostojące. Teren posesji jest ogrodzony z elektryczną bramą wjazdową.
Dom oraz woda są ogrzewane piecem na węgiel, a dół dom ma ogrzewanie podłogowe. Dom wyposażony jest w ekologiczną oczyszczalnię, z której nieczystości wywożone są raz na 1,5 roku.
CENA 729 000,00 zł
Zapraszamy do kontaktu w celu uzyskania dodatkowych informacji oraz umówienia się na prezentację.
Zainteresowany? Skontaktuj się z nami pod numerem +48 799 350 796 lub napisz nam maila poprzez formularz kontaktowy dostępny w ogłoszeniu.
Czy wiesz, że z homfi możesz kupić nieruchomość kompleksowo, tzn. załatwiając wszystko w jednej firmie? Oprócz agentów nieruchomości pomagających w znalezieniu i zakupie nieruchomości, oddajemy Ci do dyspozycji doświadczonych ekspertów kredytowych, zdolnych architektów wnętrz i zaradnych specjalistów od zarządzania najmem. Dzięki temu z nami znajdziesz nieruchomość, sfinansujesz jej zakup, zaprojektujesz i wykończysz jej wnętrze a następnie sprzedasz lub wynajmiesz z opcją przekazania nam nieruchomości do zarządzania najmem.
Zapraszam do zapoznania się z ofertą sprzedaży pięknego domu w miejscowości Jasionna , gm. Wronki pow. szamotulski, o powierzchni 173 m2, usytuowanego na działce o powierzchni 1581 m2.
Nieruchomość położona jest na spokojnym osiedlu domków jednorodzinnych w niezwykle malowniczym otoczeniu lasów. Kilkanaście minut jazdy autem znajdują się sklepy spożywcze, szkoły, przedszkole, kościół, ośrodek zdrowia czy dom kultury.
Dom składa się z parteru, piętra oraz użytkowego strychu. Na parterze, znajduje się przestronny salon z jadalnią z wyjściem na taras, kuchnia , spiżarnia, łazienka dla gości z kabiną prysznicową, sypialnia oraz pokój gościnny, a także pomieszczenie gospodarcze posiadające funkcję kotłowni.
Na piętrze mieszczą się dwa przestronne pokoje oraz łazienka
Dom uzupełnia drewniany taras i pięknie urządzony ogród. Do domu są dwa garaże wolnostojące. Teren posesji jest ogrodzony z elektryczną bramą wjazdową.
Dom oraz woda są ogrzewane piecem na węgiel, a dół dom ma ogrzewanie podłogowe. Dom wyposażony jest w ekologiczną oczyszczalnię, z której nieczystości wywożone są raz na 1,5 roku.
CENA 729 000,00 zł
Zapraszamy do kontaktu w celu uzyskania dodatkowych informacji oraz umówienia się na prezentację.
Zainteresowany? Skontaktuj się z nami pod numerem +48 799 350 796 lub napisz nam maila poprzez formularz kontaktowy dostępny w ogłoszeniu.
Czy wiesz, że z homfi możesz kupić nieruchomość kompleksowo, tzn. załatwiając wszystko w jednej firmie? Oprócz agentów nieruchomości pomagających w znalezieniu i zakupie nieruchomości, oddajemy Ci do dyspozycji doświadczonych ekspertów kredytowych, zdolnych architektów wnętrz i zaradnych specjalistów od zarządzania najmem. Dzięki temu z nami znajdziesz nieruchomość, sfinansujesz jej zakup, zaprojektujesz i wykończysz jej wnętrze a następnie sprzedasz lub wynajmiesz z opcją przekazania nam nieruchomości do zarządzania najmem.
Lokalizacja
Kredyt
Kontakt
Ups! Ta oferta jest już nieaktualna.
Nic straconego! Skontaktuj się z nami, a znajdziemy dla Ciebie podobną.
Podoba Ci się ta oferta?
Zapisz się na newsletter, aby otrzymywać oferty nieruchomości podobnych do tej.





























