Dom na sprzedaż
Duży dom na prestiżowym osiedlu Oporów
ul. Ewy i Karola Maleczyńskich, Oporów / Fabryczna, Wrocław
270 m²
ul. Ewy i Karola Maleczyńskich, Oporów / Fabryczna, Wrocław
Opis
Dom
Rynek
Pierwotny
Typ budynku
Szeregowy
Liczba pięter
2
Powierzchnia
270 m²
Pokoje
6
Łazienki
2
Sypialnie
3
Piwnica
NIE
Stan prawny
Własność
Stan budynku
Surowy zamknięty
Rok budowy
2023
Dach
Dachówka ceramiczna
Umeblowane
NIE
Parking naziemny
TAK
Garaż
TAK
Działka
Pow. działki
330 m²
Teren ogrodzony
TAK
Szerokość działki
8.4 mb.
Długość działki
39 mb.
Kształt działki
Prostokąt
Opłaty
Cena
1 997 000 zł
Cena za m²
7 396 zł/m²
Oferta
ID oferty
5426/ODS
Duży dom na prestiżowym osiedlu Oporów
Wizualizacje w tej ofercie mają charakter poglądowy – pokazują możliwy styl i pomysł na aranżację wnętrza.
Jeśli podoba Ci się ta koncepcja, nasi architekci opracują projekt wnętrz nieruchomości spełniający wszystkie wymagane normy. Skontaktuj się z nami, by poznać szczegóły.
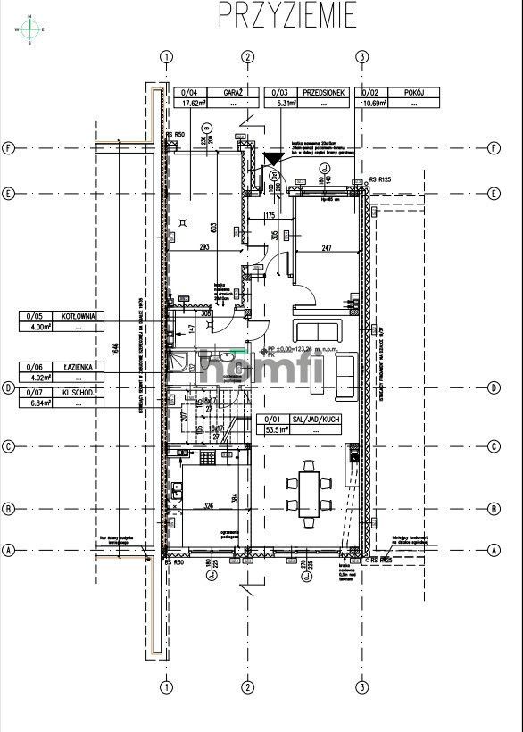
homfi prezentuje na sprzedaż wyjątkowy dom o powierzchni użytkowej 270 m2 wraz z garażem w bryle budynku na działce 330m2.
Wybudowany z najlepszych jakościowo materiałów. Stan surowy zamknięty. Pełna własność wraz z Księgą Wieczystą.
Oporów to miejsce pełne zieleni z dostępem do szerokiej infrastruktury miejskiej.
W bliskim otoczeniu znajdują się liczne sklepy, apteki, restauracje, placówki oświatowe oraz komunikacja miejska.
Dużą atrakcję stanowi bliskość wielu parków: Mamuta, Grabiszyńskiego oraz Południowego
Pomimo ciszy i spokoju, Oporów jest znakomicie skomunikowany zarówno z centrum miasta, jak również z Bielanami Wrocławskimi i węzłem autostradowym
5 minut do Bielan Wrocławskich
10 minut do Sky Tower
15 minut do wrocławskiego Rynku
Budynek 3-kondygnacyjny: parter - wys. 280 cm, I piętro - wys. 270 cm i wysokie przestronne poddasze doświetlone m.in. oknami Velux.
Drewniana stolarka okienna trzyszybowa pięciokomorowa o bardzo dobrych parametrach termicznych (drew. egzot. Meranti);
Parapety zewnętrzne granitowe
Rolety antywłamaniowe elektryczne we wszystkich oknach
Drewniane drzwi wejściowe (Meranti) wyposażone w wysokiej klasy zamek antywłamaniowy (listwa klasy C)
Brama garażowa Wiśniowski sterowana pilotem.
Dach dwuspadowy pokryty dachówką ceramiczną angobowaną Creaton.
Dom wyposażony jest w przewód spalinowy wraz z kompletnym wkładem ceramicznym pod instalację kominka.
Zainteresowany? Skontaktuj się z nami pod numerem +48 577 927 123 lub napisz nam maila poprzez formularz kontaktowy dostępny w ogłoszeniu.
Czy wiesz, że z homfi możesz kupić nieruchomość kompleksowo, tzn. załatwiając wszystko w jednej firmie? Oprócz agentów nieruchomości pomagających w znalezieniu i zakupie nieruchomości, oddajemy Ci do dyspozycji doświadczonych ekspertów kredytowych, zdolnych architektów wnętrz i zaradnych specjalistów od zarządzania najmem. Dzięki temu z nami znajdziesz nieruchomość, sfinansujesz jej zakup, zaprojektujesz i wykończysz jej wnętrze a następnie sprzedasz lub wynajmiesz z opcją przekazania nam nieruchomości do zarządzania najmem.
Zainteresowany? Zapytaj opiekuna oferty o szczegóły.
Jeśli podoba Ci się ta koncepcja, nasi architekci opracują projekt wnętrz nieruchomości spełniający wszystkie wymagane normy. Skontaktuj się z nami, by poznać szczegóły.
homfi prezentuje na sprzedaż wyjątkowy dom o powierzchni użytkowej 270 m2 wraz z garażem w bryle budynku na działce 330m2.
Wybudowany z najlepszych jakościowo materiałów. Stan surowy zamknięty. Pełna własność wraz z Księgą Wieczystą.
LOKALIZACJA:
Dom znajduje się przy cichej, ślepej uliczce w otoczeniu nowych domów jednorodzinnych na Oporowie - w jednej z najbardziej atrakcyjnych dzielnic Wrocławia.Oporów to miejsce pełne zieleni z dostępem do szerokiej infrastruktury miejskiej.
W bliskim otoczeniu znajdują się liczne sklepy, apteki, restauracje, placówki oświatowe oraz komunikacja miejska.
Dużą atrakcję stanowi bliskość wielu parków: Mamuta, Grabiszyńskiego oraz Południowego
Pomimo ciszy i spokoju, Oporów jest znakomicie skomunikowany zarówno z centrum miasta, jak również z Bielanami Wrocławskimi i węzłem autostradowym
5 minut do Bielan Wrocławskich
10 minut do Sky Tower
15 minut do wrocławskiego Rynku
NIERUCHOMOŚĆ:
Solidna konstrukcja żelbetowa od podstawy po dach, stropy Filigran, ściany z pustaka silikatowego (SILPRO 24 cm) ocieplone styropianem grafitowym EPS o grubości 20 cm (0,031 λ), elewacja zewnętrzna wykończona tynkiem silikonowym Baumit.Budynek 3-kondygnacyjny: parter - wys. 280 cm, I piętro - wys. 270 cm i wysokie przestronne poddasze doświetlone m.in. oknami Velux.
Drewniana stolarka okienna trzyszybowa pięciokomorowa o bardzo dobrych parametrach termicznych (drew. egzot. Meranti);
Parapety zewnętrzne granitowe
Rolety antywłamaniowe elektryczne we wszystkich oknach
Drewniane drzwi wejściowe (Meranti) wyposażone w wysokiej klasy zamek antywłamaniowy (listwa klasy C)
Brama garażowa Wiśniowski sterowana pilotem.
Dach dwuspadowy pokryty dachówką ceramiczną angobowaną Creaton.
Dom wyposażony jest w przewód spalinowy wraz z kompletnym wkładem ceramicznym pod instalację kominka.
FINANSE:
Cena: 1 997 000 PLNZainteresowany? Skontaktuj się z nami pod numerem +48 577 927 123 lub napisz nam maila poprzez formularz kontaktowy dostępny w ogłoszeniu.
Czy wiesz, że z homfi możesz kupić nieruchomość kompleksowo, tzn. załatwiając wszystko w jednej firmie? Oprócz agentów nieruchomości pomagających w znalezieniu i zakupie nieruchomości, oddajemy Ci do dyspozycji doświadczonych ekspertów kredytowych, zdolnych architektów wnętrz i zaradnych specjalistów od zarządzania najmem. Dzięki temu z nami znajdziesz nieruchomość, sfinansujesz jej zakup, zaprojektujesz i wykończysz jej wnętrze a następnie sprzedasz lub wynajmiesz z opcją przekazania nam nieruchomości do zarządzania najmem.
Zainteresowany? Zapytaj opiekuna oferty o szczegóły.
Lokalizacja
Kredyt
Podoba Ci się ta nieruchomość?
Nie czekaj aż ktoś Cię ubiegnie - zarezerwuj online lub zaproponuj swoją cenę!
Podoba Ci się ta oferta?
Zapisz się na newsletter, aby otrzymywać oferty nieruchomości podobnych do tej.


























