Opis
Mieszkanie
Rynek
Wtórny
Piętro
1
Powierzchnia
115 m²
Pokoje
4
Łazienki
2
Toalety
1
Sypialnie
3
Wysokość pomieszczeń
2.65 m
Miejsca park. podziemne
1
Stan prawny
Własność
Ogrzewanie
Miejskie
Mieszkanie wielopoziomowe
TAK
Umeblowane
TAK
Balkon/taras
TAK
Wyposażenie kuchni
Zabudowa kuchenna
Lodówka
Zmywarka
Płyta elektryczna
Spiżarka
Zlewozmywak
Piekarnik
Wyposażenie łazienek
Prysznic
Umywalka
Grzejnik drabinkowy
WC
Budynek
Nazwa budynku
"Vis-a-Vis"
Rodzaj budynku
Apartamentowiec
Rok budowy
2006
Liczba pięter
6
Winda
TAK
Parking podziemny
TAK
Garaż
TAK
Monitoring
TAK
Ochrona
TAK
Teren ogrodzony
TAK
Opłaty
Cena
1 899 000 zł
Czynsz administracyjny
1 300 zł
Cena za m²
16 513 zł/m²
Miejsce park. podziemne
80 000 zł
Oferta
ID oferty
22386/OMS
Apartament 4-pok. | garaż | Metro Dw. Wileński
status oferty: po umowie przedwstępnej
ATRAKCYJNA LOKALIZACJA - tylko jeden przystanek od Placu Zamkowego!
w sercu Starej Pragi, przy zabytkowej ul. Floriańskiej, co zapewnia mieszkańcom tego Lokum nie tylko przepiękny widok na unikalną zabudowę przedwojennej Warszawy, niepowtarzalny klimat, ale również idealną komunikację z centrum miasta oraz dostęp do placówek edukacyjnych:
Bliskość nadwiślańskich ścieżek rowerowo-spacerowych i Parku Praskiego pozwala mieszkańcom na kontakt z naturą, a bliskość DOSiR "Prawy Brzeg" dodatkowo umożliwia realizację pasji sportowych. Sąsiedztwo prestiżowego, prężnie rozwijającego się Portu Praskiego sprawia, że okolica zyskuje na atrakcyjności z każdym dniem!
PRESTIŻOWY APARTAMENTOWIEC "VIS-A-VIS"
* nawiązujący do architektury przedwojennej Warszawy z czerwonej cegły, z drewnianymi oknami i stolarką drzwiową najwyższej jakości,
* starannie wykończone przestrzenie wspólne z naturalnym światłem (przeszklenia, ściany wykończone trawertynem, granitowe parapety, solidne balustrady itd.),
* monitorowany, z 3 odrębnymi wejściami, z dostępem na zielone, spokojne patio z placem zabaw dla najmłodszych
DWUPOZIOMOWY, MODERNISTYCZNY APARTAMENT Z TARASEM | PUSTKA NAD SALONEM
* urządzony w ponadczasowym, loftowym stylu z wykorzystaniem naturalnych materiałów nawiązujących do architektury budynku i okolicznych zabytków,
* czytelny podział przestrzeni dziennej przeznaczonej dla gości od przestrzeni prywatnej domowników,
* ładny widok na patio lub zrewitalizowane budynki ze wszystkich okien
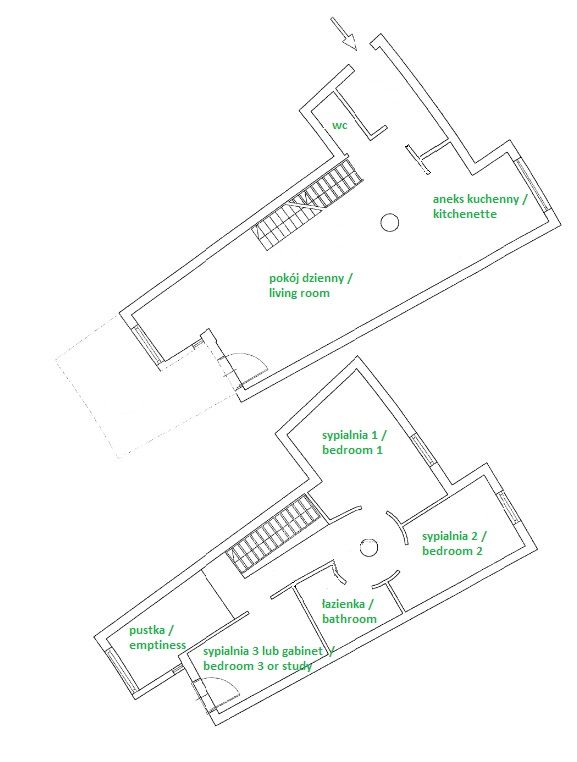
I. poziom, wysoki parter o powierzchni ok. 62 m2 to przestrzeń do spędzania czasu wspólnie z rodziną i przyjaciółmi:
Miejsce postojowe w garażu podziemnym (szerokie): 80 000 PLN
***
Czy wiesz, że z nami możesz kupić nieruchomość kompleksowo, tzn. załatwiając wszystko w jednej firmie? Oprócz agentów nieruchomości pomagających w znalezieniu i zakupie nieruchomości, oddajemy Ci do dyspozycji doświadczonych ekspertów kredytowych, zdolnych architektów wnętrz i zaradnych specjalistów od zarządzania najmem. Dzięki temu z nami znajdziesz nieruchomość, sfinansujesz jej zakup, zaprojektujesz i wykończysz jej wnętrze a następnie sprzedasz lub wynajmiesz z opcją przekazania nam nieruchomości do zarządzania najmem.
Zainteresowany? Skontaktuj się z nami pod numerem +48 799 350 796 lub napisz nam maila poprzez formularz kontaktowy dostępny w ogłoszeniu.
ATRAKCYJNA LOKALIZACJA - tylko jeden przystanek od Placu Zamkowego!
w sercu Starej Pragi, przy zabytkowej ul. Floriańskiej, co zapewnia mieszkańcom tego Lokum nie tylko przepiękny widok na unikalną zabudowę przedwojennej Warszawy, niepowtarzalny klimat, ale również idealną komunikację z centrum miasta oraz dostęp do placówek edukacyjnych:
- Metro Dworzec Wileński i Centrum Handlowe: 400 m
- przystanek tramwajowy i autobusowy Park Praski: 350 m
- Ośrodek Sportu i Rekreacji z basenem, fitness i siłownią: 350 m
- kompleks apartamentowo-usługowy Port Praski: 550 m
- kładka pieszo-rowerowa przez Wisłę (w trakcie budowy): 700 m
Bliskość nadwiślańskich ścieżek rowerowo-spacerowych i Parku Praskiego pozwala mieszkańcom na kontakt z naturą, a bliskość DOSiR "Prawy Brzeg" dodatkowo umożliwia realizację pasji sportowych. Sąsiedztwo prestiżowego, prężnie rozwijającego się Portu Praskiego sprawia, że okolica zyskuje na atrakcyjności z każdym dniem!
PRESTIŻOWY APARTAMENTOWIEC "VIS-A-VIS"
* nawiązujący do architektury przedwojennej Warszawy z czerwonej cegły, z drewnianymi oknami i stolarką drzwiową najwyższej jakości,
* starannie wykończone przestrzenie wspólne z naturalnym światłem (przeszklenia, ściany wykończone trawertynem, granitowe parapety, solidne balustrady itd.),
* monitorowany, z 3 odrębnymi wejściami, z dostępem na zielone, spokojne patio z placem zabaw dla najmłodszych
DWUPOZIOMOWY, MODERNISTYCZNY APARTAMENT Z TARASEM | PUSTKA NAD SALONEM
* urządzony w ponadczasowym, loftowym stylu z wykorzystaniem naturalnych materiałów nawiązujących do architektury budynku i okolicznych zabytków,
* czytelny podział przestrzeni dziennej przeznaczonej dla gości od przestrzeni prywatnej domowników,
* ładny widok na patio lub zrewitalizowane budynki ze wszystkich okien
I. poziom, wysoki parter o powierzchni ok. 62 m2 to przestrzeń do spędzania czasu wspólnie z rodziną i przyjaciółmi:
- przestronny salon dobrze doświetlony z antresoli dzięki wysokości ponad 5m tuż przy tarasie, z wydzieloną przestrzenią wypoczynkową oraz jadalnią,
- funkcjonalny aneks kuchenny z dużą wyspą przy ścianie i głębokim blatem - tutaj przygotowanie posiłków jest autentycznie czystą przyjemnością (możesz stąd obserwować dzieci bezpiecznie bawiące się na zamykanym, zielonym dziedzińcu),
- przestronny przedpokój z dwoma szafami w zabudowie,
- toaleta dla gości
- sypialnia nr 1 z podwójnym łożem oraz dwoma dużymi szafami w zabudowie na sąsiednich ścianach oraz dodatkowym miejscem na biurko lub toaletkę,
- sypialnia nr 2 (np. młodszego dziecka) również wyposażona w szafę na ubrania oraz zestaw mebli młodzieżowych,
- sypialnia nr 3 tuż przy schodach, idealna dla starszego dziecka lub jako gabinet: wyposażona w białą, ponadczasową zabudowę na całą ścianę, która pozwoli zorganizować przestrzeń,
- duża łazienka z prysznicem we wnęce, z toaletą typu geberit oraz miejscem na pralnię i suszarnię (do remontu)
- przestronny, doskonale doświetlony przedpokój, dający dodatkowo ciekawe możliwości aranżacyjne, szczególnie przy łazience, obok pionu konstrukcyjnego.
FINANSE:
Cena apartamentu: 1 899 000 PLNMiejsce postojowe w garażu podziemnym (szerokie): 80 000 PLN
***
Czy wiesz, że z nami możesz kupić nieruchomość kompleksowo, tzn. załatwiając wszystko w jednej firmie? Oprócz agentów nieruchomości pomagających w znalezieniu i zakupie nieruchomości, oddajemy Ci do dyspozycji doświadczonych ekspertów kredytowych, zdolnych architektów wnętrz i zaradnych specjalistów od zarządzania najmem. Dzięki temu z nami znajdziesz nieruchomość, sfinansujesz jej zakup, zaprojektujesz i wykończysz jej wnętrze a następnie sprzedasz lub wynajmiesz z opcją przekazania nam nieruchomości do zarządzania najmem.
Zainteresowany? Skontaktuj się z nami pod numerem +48 799 350 796 lub napisz nam maila poprzez formularz kontaktowy dostępny w ogłoszeniu.
Lokalizacja
Kredyt
Kontakt
Ups! Ta oferta jest już nieaktualna.
Nic straconego! Skontaktuj się z nami, a znajdziemy dla Ciebie podobną.
Podoba Ci się ta oferta?
Zapisz się na newsletter, aby otrzymywać oferty nieruchomości podobnych do tej.
























