Dom na sprzedaż
Dom bliźniak z tarasem, bez skosów
ul. Piaskowa, Wielogóra / Jedlińsk, Radomski
116 m²
ul. Piaskowa, Wielogóra / Jedlińsk, Radomski
Opis
Dom
Rynek
Pierwotny
Typ budynku
Bliźniak
Liczba pięter
1
Powierzchnia
116 m²
Pokoje
4
Sypialnie
3
Gaz
TAK
Prąd
TAK
Szambo
TAK
Kanalizacja
TAK
Stan prawny
Własność
Stan budynku
Do wykończenia
Rok budowy
2023
Ogrzewanie
Gazowe
Dach
Blachodachówka
Umeblowane
NIE
Garderoba
TAK
Balkon/taras
TAK
Parking naziemny
TAK
Garaż
TAK
Działka
Pow. działki
450 m²
Teren ogrodzony
TAK
Ukształtowanie działki
Płaska
Opłaty
Cena
460 000 zł
Cena za m²
3 966 zł/m²
Oferta
ID oferty
4867/ODS
Dom bliźniak z tarasem, bez skosów
Zostały jeszcze 4 lokale.
Nowa cena, nowe zdęcia, nowy sezon sprzedażowy!
Z przyjemnością przedstawiam kameralne, zamknięte Osiedle Willowe Piaskowa Park.
To 8 domów w zabudowie bliźniaczej z ogrodem, garażem oraz tarasem, które wyróżniają się doskonałym designem i stylem.
Pierwszorzędne miejsce dla ludzi chcących odpocząć od zgiełku centrum nie tracąc jednocześnie łatwego dostępu do miasta.
Osiedle położone jest zaledwie 10 minut od centrum Radomia, niedaleko trasa na Warszawę.
W okolicy znajduje się zabudowa domów mieszkalnych w otoczeniu zieleni.
Powierzchnia każdego domu, to 120 m2. Dwie, pełne kondygnacje mieszkalne bez skosów, taras, ogród oraz garaż (ok. 19 m2).
Stan surowy zamknięty z zewnętrzną elewacją, balustradami oraz zagospodarowaniem terenu.
Duże przeszklenia zapewniają idealnie doświetlone wnętrza naturalnym światłem.
Brak skosów sprawia, że dom jest funkcjonalny, ekonomiczny w utrzymaniu, z możliwością pełnej aranżacji wnętrz.
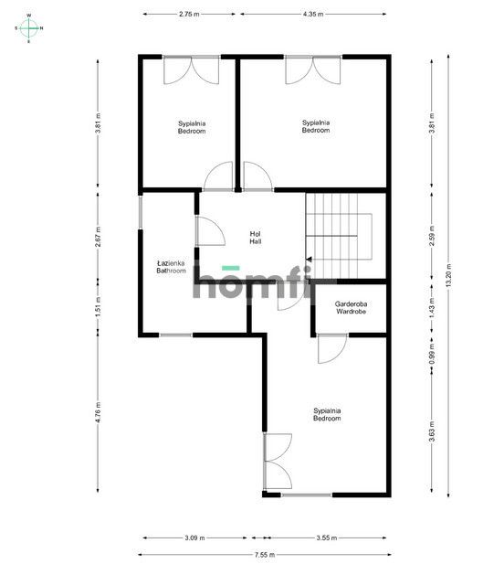
Piętro: 3 sypialnie, garderoba i łazienka.
Zrobione tarasy wokół lokali.
Pusta przestrzeń z zasianą krótką trawą,
Teren całkowicie ogrodzony, z przesuwną bramą wjazdową.
Przy każdym lokalu obecnie wkopane szambo, poj. 10m3
W fazie procesowania jest realizacja przyłączy kanalizacyjnych.
Każdy lokal ma także światłowód.
Finanse
Lokal460 000 PLN
Zainteresowany? Skontaktuj się z nami pod numerem +48 799 350 796 lub napisz nam maila poprzez formularz kontaktowy dostępny w ogłoszeniu.
Czy wiesz, że z homfi możesz kupić nieruchomość kompleksowo, tzn. załatwiając wszystko w jednej firmie? Oprócz agentów nieruchomości pomagających w znalezieniu i zakupie nieruchomości, oddajemy Ci do dyspozycji doświadczonych ekspertów kredytowych, zdolnych architektów wnętrz i zaradnych specjalistów od zarządzania najmem. Dzięki temu z nami znajdziesz nieruchomość, sfinansujesz jej zakup, zaprojektujesz i wykończysz jej wnętrze a następnie sprzedasz lub wynajmiesz z opcją przekazania nam nieruchomości do zarządzania najmem.
Zainteresowany? Zapytaj opiekuna oferty o szczegóły.
Nowa cena, nowe zdęcia, nowy sezon sprzedażowy!
Z przyjemnością przedstawiam kameralne, zamknięte Osiedle Willowe Piaskowa Park.
To 8 domów w zabudowie bliźniaczej z ogrodem, garażem oraz tarasem, które wyróżniają się doskonałym designem i stylem.
Pierwszorzędne miejsce dla ludzi chcących odpocząć od zgiełku centrum nie tracąc jednocześnie łatwego dostępu do miasta.
LOKALIZACJA:
Spokojna okolica, w północnej części Radomia - Wielogóra.Osiedle położone jest zaledwie 10 minut od centrum Radomia, niedaleko trasa na Warszawę.
W okolicy znajduje się zabudowa domów mieszkalnych w otoczeniu zieleni.
DOM:
Już gotowe, do oddania.Powierzchnia każdego domu, to 120 m2. Dwie, pełne kondygnacje mieszkalne bez skosów, taras, ogród oraz garaż (ok. 19 m2).
Stan surowy zamknięty z zewnętrzną elewacją, balustradami oraz zagospodarowaniem terenu.
Duże przeszklenia zapewniają idealnie doświetlone wnętrza naturalnym światłem.
Brak skosów sprawia, że dom jest funkcjonalny, ekonomiczny w utrzymaniu, z możliwością pełnej aranżacji wnętrz.
ROZKŁAD:
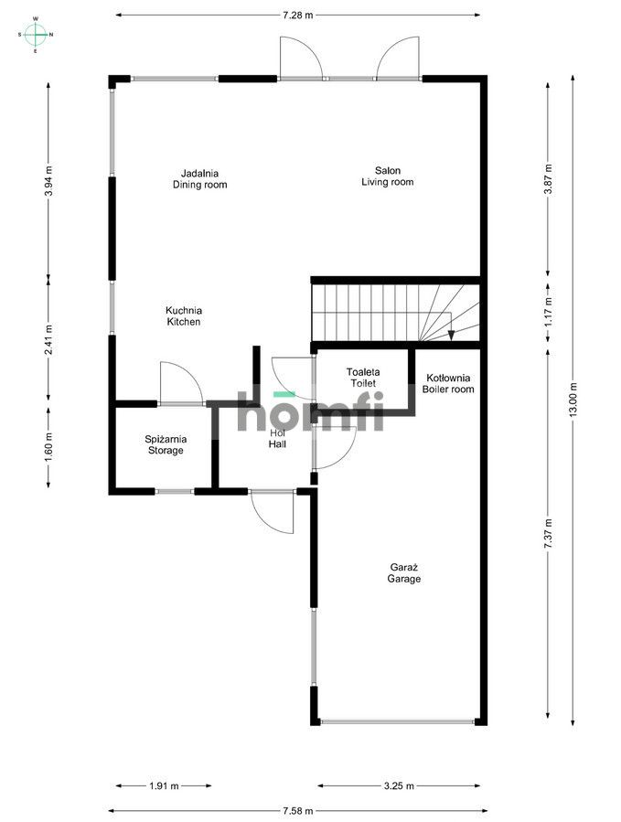
Parter: salon, kuchnia, spiżarnia, jadalnia, garaż, taras, wiatrołap, toaleta.Piętro: 3 sypialnie, garderoba i łazienka.
ZAGOSPODAROWANIE TERENU:
Drogi wewnętrzne wyłożone kostką + podjazdy do garaży, opaska wokół domu.Zrobione tarasy wokół lokali.
Pusta przestrzeń z zasianą krótką trawą,
Teren całkowicie ogrodzony, z przesuwną bramą wjazdową.
Przy każdym lokalu obecnie wkopane szambo, poj. 10m3
W fazie procesowania jest realizacja przyłączy kanalizacyjnych.
Każdy lokal ma także światłowód.
MEDIA:
Woda, gaz, prąd, instalacja domofonowa, światłowód.Finanse
Lokal460 000 PLN
Zainteresowany? Skontaktuj się z nami pod numerem +48 799 350 796 lub napisz nam maila poprzez formularz kontaktowy dostępny w ogłoszeniu.
Czy wiesz, że z homfi możesz kupić nieruchomość kompleksowo, tzn. załatwiając wszystko w jednej firmie? Oprócz agentów nieruchomości pomagających w znalezieniu i zakupie nieruchomości, oddajemy Ci do dyspozycji doświadczonych ekspertów kredytowych, zdolnych architektów wnętrz i zaradnych specjalistów od zarządzania najmem. Dzięki temu z nami znajdziesz nieruchomość, sfinansujesz jej zakup, zaprojektujesz i wykończysz jej wnętrze a następnie sprzedasz lub wynajmiesz z opcją przekazania nam nieruchomości do zarządzania najmem.
Zainteresowany? Zapytaj opiekuna oferty o szczegóły.
Lokalizacja
Kredyt
Podoba Ci się ta nieruchomość?
Nie czekaj aż ktoś Cię ubiegnie - zarezerwuj online lub zaproponuj swoją cenę!
Podoba Ci się ta oferta?
Zapisz się na newsletter, aby otrzymywać oferty nieruchomości podobnych do tej.




































