Opis
Mieszkanie
Powierzchnia
48 m²
Pokoje
2
Łazienki
1
Sypialnie
1
Komórka lok.
TAK
Balkon/taras
TAK
Wyposażenie kuchni
Lodówka
Zmywarka
Piekarnik
Mikrofala
Zamrażarka
Okap
Zabudowa kuchenna
Wyposażenie łazienek
Pralka
Umywalka
Prysznic
WC
Budynek
Nazwa budynku
Promenady Wroclawskie
Liczba pięter
6
Winda
TAK
Monitoring
TAK
Teren ogrodzony
TAK
Opłaty
Cena
2 500 zł
Cena za m²
52 zł/m²
Oferta
ID oferty
45298/OMW
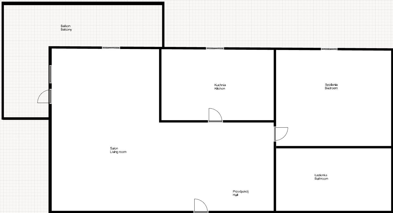
Duże rozkładowe mieszkanie Promenady Wrocławskie
Lubią Państwo wysoki standard i słoneczne mieszkanie z dużym narożnym tarasem? Jeżeli tak to zapraszam do wynajęcia dwupokojowego mieszkania z ogromną komórką lokatorską na Promenadach Wrocławskich
Łazienka: przestronna i komfortowa. W łazience znajduje się prysznic, umywalka, pralka oraz toaleta.
Sypialnia - przestronna z łóżkiem małżeńskim
Salon - sofa, stół z krzsłami
Kuchnia - meble w zabudowie kuchennej (lodówko-zamrażarka, płyta grzewcza, okap, piekarnik, mikrofala)
600 PLN - czynsz administracyjny
200 PLN - zaliczka na prąd
Zapraszam na prezentację.
Zainteresowany?
Skontaktuj się z nami pod numerem +48 799 350 796 lub napisz nam maila poprzez formularz kontaktowy dostępny w ogłoszeniu.
LOKALIZACJA:
Promenady Wrocławskie, dzielnica dobrze skomunikowane z całym miastem, 5 min pieszo do przystanku tramwajowego, autobus jeszcze bliżej, niedaleko - szkoły, przedszkola, sklepy, markety. Dla wielbicieli świeżego powietrza, dużo terenów zielonych do spacerowania wzdłuż Odry.BUDYNEK:
6-piętrowy, bardzo nowoczesny budynek z windą. Bardzo popularna inwestycja w tej części miasta.MIESZKANIE:
Funkcjonalnie dwupokojowe mieszkanie, w pełni umeblowane. Składa się z salonu z wygodną kanapą, sypialni (z łóżkiem małżeńskim), widnej kuchni, przedpokoju oraz łazienki. Dodatkowo jest duży narożny balkon.Łazienka: przestronna i komfortowa. W łazience znajduje się prysznic, umywalka, pralka oraz toaleta.
Sypialnia - przestronna z łóżkiem małżeńskim
Salon - sofa, stół z krzsłami
Kuchnia - meble w zabudowie kuchennej (lodówko-zamrażarka, płyta grzewcza, okap, piekarnik, mikrofala)
OPŁATY:
2500 PLN - czynsz najmu600 PLN - czynsz administracyjny
200 PLN - zaliczka na prąd
Zapraszam na prezentację.
Zainteresowany?
Skontaktuj się z nami pod numerem +48 799 350 796 lub napisz nam maila poprzez formularz kontaktowy dostępny w ogłoszeniu.
Lokalizacja
Kredyt
Kontakt
Ups! Ta oferta jest już nieaktualna.
Nic straconego! Skontaktuj się z nami, a znajdziemy dla Ciebie podobną.
Podoba Ci się ta oferta?
Zapisz się na newsletter, aby otrzymywać oferty nieruchomości podobnych do tej.



























